From collection Creating Acadia National Park: The George B. Dorr Research Archive of Ronald H. Epp
Page 1
Page 2
Page 3
Page 4
Page 5
Page 6
Page 7
Page 8
Page 9
Page 10
Page 11
Page 12
Page 13
Page 14
Page 15
Page 16
Page 17
Page 18
Page 19
Page 20
Page 21
Page 22
Page 23
Page 24
Page 25
Page 26
Page 27
Page 28
Page 29
Page 30
Page 31
Page 32
Page 33
Page 34
Page 35
Page 36
Page 37
Page 38
Page 39
Page 40
Page 41
Page 42
Page 43
Page 44
Page 45
Page 46
Page 47
Page 48
Page 49
Page 50
Page 51
Page 52
Page 53
Page 54
Page 55
Page 56
Page 57
Page 58
Page 59
Page 60
Page 61
Page 62
Page 63
Page 64
Page 65
Page 66
Page 67
Page 68
Page 69
Page 70
Page 71
Page 72
Page 73
Page 74
Page 75
Page 76
Page 77
Page 78
Page 79
Page 80
Page 81
Page 82
Page 83
Page 84
Page 85
Page 86
Page 87
Page 88
Page 89
Page 90
Page 91
Page 92
Page 93
Page 94
Page 95
Page 96
Page 97
Page 98
Page 99
Page 100
Search
results in pages
Metadata
[Series III] Old Farm Estate-Origins 1868 to 1928
Old Farm Estate: Origins
1868 to 1928
Cultural Landscape
Inventory and Assessment
Oldfarm Property
Acadia National Park
FRENCHMAN BAY
Bar Harbor, Maine
1868 Site Context Map
Sols
Cliff
Newport /
(Champlain)
Mountain
Birch point
(Dorr Point)
Ogden's
Point
East Knob
SOURCES
(Beer Brook Hill)
1. ACAD GIS Files
2. 1850 Map of Hancock County Village of Eden
Dean Higgins Cove
3. 1875 USGS Map of Mount Desert Island
Early Farmstard
(Compass Harbor)
fear Bront
Sites
BEAVER
4. 1938 Map of Property of George B. Dorr
5. Partial Abstract of Title of Oldfarm Douglas B.
Creek
Chapman, Esq. Archives
6. George B. Dorn Personal Papers. Bar Harbor Historical
Society
DRAWN BY
Cromwells
Erick Duym, 2016
AutoCAD Map 3D. Adobe Photoshop and Illustrator C56
Arc GIS 10.2
LEGEND
1868 roads
Existing roads
West Knob
(Bear Brook Hill)
1868 buildings
Existing buildings
Historic Oldfarm property line
1668-1875 property lines
Oldfarm property
Brook
5 Feet contaur
Spring
Strawberry
Wetland or Meadow
Big Meatdox
(Great Meadow}4
NOTES
1. All features shown in approximate scale and location
2. Contemporary place names in parenthesis.
DEN
3. Features depict information from 1860 and 1875 maps.
Harbor)
4. Illustration of approximate 100-acre parcel purchased
by the Dorn family in 1868
5001
10001
2000
DRAWING 1.1
20. Lowther Lodge, Kensington, by Richard Norman Shaw. 1875. (Buildi
21.C.
F.
Dorr House, Mount Desert, Maine, by
22.
Alexander F. Oakey. 1876-77. (American Architect, 1877)
an
live foot interior square, about 2,000 Leet, leaving 8,000 reet
built upon, at a cost of $89,000. The land would cost another
and M. F. Kuhl
$10,000, making $90,000 in all. For a tenement of one room
There are ma
fourteen by ten, and a dark closet eight feet square, the poor pay
of Europe, whic
HOW about eight dollars a month. For the saine price, if we gave
der technischen,
theur two light rooms and a water-closet with the little hall, we
Literatur," a p
should, getting some fifteen tonements on a floor, bring in thus
the A.L.A. ough
$1.450 annually. The three-room tenements would in this pro-
istry also treat o
portion rent at eleven dollars a month. For five stories we should
have been publi
get a return of $7,250, and from the stores $2,000 more, - making
aid Co., New 3
$9,250, or more than ten per cent gross, which is ample to provide
may also be fou
for a seven per cent not return. This computation assumes the
as a preservativ
selection of a corner plat.
THE ILLUSTTRATIONS.
TO MA
DESIGN FOR RESIDENCE AT SYRACUSE, N.Y. MR. C. W. ROMEYN,
ARCHITECT.
Sir, - noti
(No. 124 West Thirteenth Street, N. V.)
process which V
THIS house is built of brick, faced with red Croton brick laid in
Sylvester's met
red mortar, with a course of tooth-work under lintels, and bands
gate-house of t
of black brick above and below course and sills. Cost, $8,000.
.Y., the wall
thirty-six feet,
PROVIDENCE HIGH SCHOOL, PROVIDENCE, R.I. MESSRS. WALKER
years after the
ND GOULD, ARCHITECTS.
A year or tw
(No. 37 WeyDosset Street, Providence, R.I.)
a stone cottage
trial of the ust
This is to be built of brick, with Amherst stone wrought work,
He told me a
on an underpinning of Westerly granite land rubble, with split
that it was suc
faces. The interior is arranged, on the first floor, for two girls'
tion of the stor
and two boys' schools with recitation rooms and wardrobes, a
philosophical lecture-room with a small library and cabinet ad-
SYLVESTER'S
joining, and offices for the principals of the school. The philo-
sophical lecture-room is connected by a small stairway to the
Dissolve Cas
chemical lecture-room which is in the basement. The remainder
gallon; dissoli
of basement, after providing for the boilers and coal-rooms, is
both to be com
used for play-rooms. The second floor is much the same as the
The walls sh
first; the difference being an additional school-room in place of the
air not below
lecture-room below, and a large recitation-room over the principals'
with a flat bru
rooms. The school-rooms are calculated to seat about seventy
to form a frot
scholars each. The third floor will have an assembly hall 63x108
hours, to becor
feet, a draughting room, and two spare school-rooms. The build-
may be at a tél
ing will be finished throughout in ash, in a very plain and substan-
twenty-four h
tial manner, and special attention will be given to the heating and
washes alterna
ventilation.
I am not qiii
HOUSE AT MOUNT DESERT, ME. MR. A. F. OAKEY, ARCHITECT.
was in the Ma
In my own e
(No. 44 West Seventeenth Street, New York.)
effectual that
The first story is to be built of brick and stone, excepting the
frames and els
0.20
Architect and Building News.
21
oston I have
columns of the veranda, which will be of hard wood turned.
west classes;
The parapet of veranda is to be of brick with stone coping, and the
osed of only
panels filled with moulded brick so laid as to form open-work pat-
des, and the
terns, as shown, only three simple forms being employed. The roof
1 cemented,
e for drying
7 interstices
ne. One or
ate with the
ding, which
Id be in the
em. These
is shingled, and the rest of the building is timber and of simple con-
has shown,
struction. In execution, moulded brick will be introduced in the
chimneys if economy does not forbid it; but the general form of
eated on the
the stacks will remain as shown.
Id swell the
arious inner
3, card, and
WATER-GLASS
NEW YORK.
*probably
EDITOR AMERICAN ARCHITECT AND BUILDING NEWS
East River
IN answer to the inquiries of your correspondent (1/1) in regard
and is com-
to water-glass, it may be said that it was applied thirty years ago
ill be better
to the woodwork of the Royal Theatre in Munich to make it fire-
rks about a
proof. While engaged in studies upon theatre construction about
ts might be
ten years ago, I addressed a letter to one of the professors of the
ints, or even
Polytechnicum at Munich, inquiring of him as to the efficiency of
l prove very
water-glass, and whether it had proved to be n success at the Royal
room for the
Theatre. His answer was affirmative as to its success at the thea-
itually drive
tre, and strongly 111 favor of its use.
re tract such
In Paris, water-glass has been used on the Louvre and other gov-
and further
evnment buildings, to protect the store against injurious effects of
the weather. I cannot give my authority at present, but I have
mately by a
read it somewhere that Rauson's success in the manufacture of
st greatly re-
artificial stone is mainly attributable to the use of water-glass. In
ment houses
Germany it is also used to make thätched roofs fire-proof. It seems
square foot
to me it could be used with success to make railroad passenger
S be safe to
cars fire-proof, and prevent such calamities as happened at Ashta-
we took four
bula.
for a forty-
The most eminent authors upon the subject are its inventor, the
8.000 feet
late DF J. M. Von Fuchs, professor of mineralogy at Munich;
cost another
and M. F. Kuhlman, professor of chemistry at Lillo.
of one room
There are many good articles written in the technical periodicals
the poor pay
of Europe, which may be found by referring to the Repertorium
if we gave
der technischen, mathematischen, and naturiissensclafilichien Journal-
ttle hall, we
Literatur, a publication, by the way, which every Chapter of
ring IN thus
the A.L. A. ought to possess. Muspratt's and other works on chem-
in this pro-
istry also treat of water-glass. Several pamphlets upon the subject
les we should
have been published, and may be obtained of Messrs. Westermann,
CO. - making
and Co. New York. In the London Builder of 1857 page 709,
22
Jan. 19, 1878
The American Architect and Building News,
VOL. III.-No. 103.
for confessional alcoves. opening into the aisles beneath each aisle-
In what I have quoted. has not Sir Joshua said enough in cover
window. five on each side the church. How many millions will be
the whole field of art? and yet we continue to this day to waste
spent on the structure before its completion. it is almost impossible
our clients' money in tessellated towers and the like conceits, as if
to say: nor would it be at all safe to fix the date of completion.
we expected to be undermined by our neighbors and to be coll-
An arch-episcopal residence and a number of other buildings are to
sistent with which scenic representations. We should go masquer-
be built in contrection with it; but on these no work has yet been
ading in shapes with chain-armor under our doublets.
done. Since 1853, when the first sketches for the structure were
To offset these archmologicab reversions we have the provincial
made, the work has gone on faster or slower, as the funds in hand
builder with his (jig-say) and his balloon frame: and we find our-
permitted.
selves admiring the progress of the engineer as the only worker
in the field who has thought for himse accepted the limitations
HOUSE FOR CHARLES II. BRADSHAW, ESQ., SPRING HILL, MASS.
of his problems, and met them with ingenuity: only his lack of
MR. W. G. PRESTON, ARCHITUCT.
artistic training enables us to find a living in our practice. unless
we are content only to be called upon tn minister to the unneces-
PROPOSED RESIDENCE OF MESSRS. A: AND M. J. ALLEN; AKRON, 0.
sary and luxurious evidences of civilizations and to take 110 part in
MR. F. 0. WEARY, ARCHITECT.
the development that will go on. whether 11. move with it or not.
It seems to me that Mr. Garbett is neurer the truth with his
PERSPECTIVE STUDY. - NO. I.
development of the Tensile than Mr. Fergusson with his
For explanation of this cut, see the preceding article, Papers. Oil
Italian Renaissance: for this principle already shows its influence
Perspective."
strongly in all our utilitarian work. - i.e., work in which the
requirements must be met without regard to "Infression: and
TIEE POSSIBILITY OF A NEW STYLE IN ARCHI-
does not the expression follow inevitably
TECTURE
W by should we discard the "Inpressile" and "impressive"
simply because there is little room for invention in the ir applica-
(A paper hs Mr. F. Oakey, t. A, read at the Eleventh ;Lunual Convention of
tion? Ought We not rather be glad that the earth's surface
the American Institute of Architecta.]
abounds with the truest examples to guide us in our work It is
So many eminent authors have written on this subject, that it
no argument against it composite system of construction. that we
would seem littl remains to be said; and yet 1. think that a care-
have no precedents we are in no sense bound to adh re to the
ful comparison of the views of the best authors naturally suggests
peculiarities of any age.
a conclusion that I find. whether intentionally or not, omitted, or
The question must always be one of the best means to an end:
rather not developed, in any of them.
and if the end is reached ilie means excuse themselves. especially
Mr. Fergusson says that a new style is to be found in it develop-
as they are so bound up in it as to make it impossible to achi 'TP
ment of the Italian Renaissance, that no progress is possible in
a satisfactory result with insufficient means. Why have we not
Gothic or Greek, and further, that archalogy is not architecture :
the courage to think for ourselves. and. when we are asked in what
while Mr. Garbett. condemning the servile copyist, as strongly
style have we expressed our thoughts. to answer that we do not
points to the possibility of a new style in the one constructive
think it necessary to classify and ticket every thing. to name in
principle that has never yet controlled a style, i. c. the Tensile."
one word an over-varying systein that cludes such an attempt
IIc believes that the Depressile and the Compressile have been ex-
The Eastlake style. forsooth. is even now a recognized 'mm: and
hausted, aud that a system embodying the Tensile." together
yet it would puzzle the quil-drivers or any one ulse. (i) say in
with it generalized imitation' of nature, is the goal we seek.
what it consists. I like the old English finitien of auditee-
Guillaume agrees with Fergusson in the main, but looks for no
ture: the art of well Building:" and what is not well and truly
change till architects are guided by sci: nce more than tradition.
built does not deserve the name. This it seems to m. is all with
Much has been written by other distinguished professors, but in
which we have to concern ourselves to study each problem by
these three we have the sense of the discussion in its lat 'st stage.
itself: and. having met the requirements in plan. as Be build
I have looked in vain in the works of these authors. and in those
up upon it, who shall hold UN responsible for our style. if every
of many others, for a statement or suggestion of a theory whose
purpose that was intended is served by ingenious, constructive
apparently unconscious corroboration has been, in Mr. Forgusson's
economy?
case at least, the work of his life. I'caunot read his history with-
I (ii) not wish to inveigh against suitable and necessary decora-
out being struck with the completeness of the evotution its
tion, ---- necessary as regards the phonetic expression of a design
record
there
io.
but I can for the medinal OT
these three we have the sense of the discussion in its lat st stage.
115011
LIII;
111
as
W!
1,011.1
I have looked in vain in the works of these authors, and in those
up upon it, who shall hold us responsible for our style. if every
of many others, for a statement or suggestion of a theory whose
purpose that was intended is served by ingenious, constructive
apparently unconscious corroboration has been, in Mr. Forgusson's
economy ?
case at least. the work of his life. I cannot read his history with-
I do not wish to inveigh against suitable and necessary decora-
out being struck with the completeness of the evolution its pages
tion. - necessary as regards the phonetic expression of a design ;
record: there is no missing link in this work of nature; far I
but I cun see no reason for reviving the médiaval. grotesque. or
must believe architecture, as an expression of the longings and
shutting fair daylight out of a building where light is a desiders.
aspirations p.physical and intellectual man, the work of nature
tum, because we have precedents for these dispositions. And
as actually as any thing Mr. Iluxley venlighten us upon.
there's the rub: Have we precedents for any such thing? 10
Until the fifteenth century, neither the whins of this or that
more than we have precedents for stone spires made of wood.
architect or client, nor the accumulat traditional pedantry of
If there is one fact connected with the examples we blindly imi-
itlier or both could avail against the natural growth of forms
tated it is that they here-built for purposes which they fulfilled
born of bodily needs or religious superstition. The changes that
and there is ample internal evilence that th ir designers would
were made from time to time. owing to climatical influences, or
have treated our problems in an entirely different way.
as the result of political or religious revolution, were as naturally
Because our ancestors wore&fortunate enough to unearth the
consequent as the changes in the structure and exuberance of a
classic poets, and unfortunate enough to consider it necessary to
vegetable when transplanted. or by treatment brought to a high
revert in every thing to tlie classic type, we have been obliged to
state of cultivation. The cultivation must be in the right direc-
go all over that old ground ;and it is not our fault if we have not
tion. the inherent and essential qualities of the plaut must be cul-
repeated every vagary of every decline until we find ourselves
tivated. or the species dies out; and we have nothing left but the
where we started. Now that it has taken all these centuries to
chromo in the book to record how beautiful a flower it once bore.
find the road we have strayed from, are We going to wander
Why do we need now what the world never desired before?
'round the monuments of past ages rhapsodizing this or that
Why are we divided to-day between the revivalists and the nov-
detail that has lost its significane: in our day. ignoring the great
celty-hunters and this last occupation the lowest incentive to
principles that could lead us on and mumbling about a new
architectural - I might say all - diffort. On the one hand, are
style? Nonnan or whole professional brotherhood can saddle the
we tn accent the conclusions of the fifteenth century.as final in
world with what it does not need to satisfy its utilitarian ends
architecture more than in astronomy'? and on the other. is there
or its religious thought; and it is wors? than idle to grumble
not an inherent fitness in things in form, consistency. and expres-
at the sway of the mighty dollar, to give as an excuse for con-
sion. that absolves from any responsibility as to their age or
structive lies. the reason that the money was not forthcoming to
novelty?
pay for a real stone vault or flying-buttress. Ii the stone vault
The answers to these questions are not in favor of tin gargoyles,
had been necessary, the money would have been forthcoming.
or in fact constructive lies of any kind. As Sir Joshua Reynolds
The mighty dollar is the power of our age and a power that
says The natural appetite of the human mind is for truth,
places every process and every material within our reach if we
whether that truth results from the real agreement or equality of
would only avail ourselves of our opportunities.
original ideas (among themselves, OF of the representation of any
The underlying principles that enabled the mediasal architects
object with the thing represented. or from the correspondence of
to command our admiration and respect are as true to-day as they
the several parts of any arrangement with each other. It is the
were then, and it is only by their application to our needs that we
very same taste which-relishe S a demonstration in geometry, that
can achieve as grand results s.ever expressed by the political or
is pleased with the resemblance of a picture to an original, and
religious civilization of any people; while we have the incentive
touched with the harmony of music." And again, what he savs
of making our achievements forever stopping-stones for future
of other arts could well include architecture On the whole it
generations in scarch - of a new style, but of truth.
seems to me that there is but one presiding principle which regu-
lates and gives Stability to any art. The works, whether of poets,
painters, nioralists. or historians, which are built upon general
CAST-IRON GLAZED TILES - The Drulsche Zeitung
nature. live forever; while those which depend for existence on
says, At the iron-works of Groeditz that Riesa Germany, gazed
particular customs and habits, a partial view of nature. or the
cast-iron tiles for roofing are now Mille. They are not heavier than
fluctuation of fashion, can only be coeval with that which first
ordinary tiles, and are very strong. The trailror depots of Lieban
and of Reichenbach, aut many private houses of Hamburg and
raised theni from subscurity."
Dresden, are routed with them.
Price an c
Appletons' Home Books.
BUILDING A HOME.
BY
A. F. OAKEY.
COLLEGE
UNIVERSITY HEIGHTS
H
DUNPHY
COLLECTION
RECEIVED
JUN
1922
NEW YORK:
D. APPLETON AND COMPANY,
1, 8, AND 5 BOND STREET.
1881.
56
BUILDING A HOME.
EXTERIORS, ETC.
57
and no practical objections can be urged against this durable
cessary work of holding up the veranda roof, and bracing
method, while it is very effective if not overdone. Usually
the framing of the gable-ends, SO that the same quantity of
this treatment should only be adopted for the upper stories
material would have to be substituted ; this is a small in-
of a building in which the first story is built of stone, or of
stance of decorating the construction, and, though the whole
brick, with stone quoins, lintels, and sills. When a house
Bungalow is not very decorative, it could be less so. On the
is built of stone, brick, or tiles, no amount of clambering
FIG. 23
vines can injure it, and the effect of growing things on such
a background is SO charming that one would almost be
tempted to throw a few clods of earth upon the roof, in
FIG. 24.
order to have ferns and partridge-berry vines taking root
among the tiles on the shady slope, especially if the water
other hand, its native Indian steep roof and broad eaves
supply was not from the cistern.
would render it a very picturesque object.
As an instance of extreme simplicity, the illustration of
Fig. 24 affords some opportunities for picturesque exte-
the Bungalow, Fig. 23, may be cited. It could be made
rior treatment. This design is only one of many that could
more barn-like only by omitting the ridge-tile and the
be erected on the plans (Figs. 11 and 12). It is severe and
few bits of turning, which, however, are doing the ne-
simple, and is mainly dependent on the forms given to the
58
BUILDING A HOME.
EXTERIORS, ETC.
59
unusual amount of roof surface, which, whatever disadvan-
tages it may have, insures a plentiful water supply, and
much decreases the expense of exterior work.
Fig. 25 is the exterior of the plan shown in Fig. 15, and is
as nearly perfectly plain and devoid of decoration as can be ;
any decorative effect being attained by the relative size and
disposition of the parts. It was in connection with this
house that we suggested making the veranda a conser-
vatory in winter. The veranda affords opportunities for
various treatment. In this instance we have, as already
stated and shown on the plans, brought out the bedroom
floor over the veranda, both to acquire more space on the
second floor, and to get. rid of half of the veranda roof,
which is usually of so low a pitch in comparison with the
BIG
main roof as to give the whole veranda the expression of
being a mere addition or after-thought, in no way con-
nected with the original design of the building. A large
extent of flat, or nearly flat, veranda roof has also the dis-
advantage of reflecting the sun back into the bedroom win-
dows, and the only satisfactory compromise of this diffi-
culty, where it is for some reason unadvisable to project
the second story over the veranda, is to make a terrace
open to the sky on top of it, with a proper balustrade, or
to have, in Southern fashion, a double tier of veranda cov-
ered by a projection of the main roof.
Where the second story is projected, as in Figs. 15 and
25, an opportunity offers for a very picturesque treatment of
the ceiling of the veranda, in lieu of the usual flat ceiling,
by carrying up the slope to a ridge-line against the house,
and gaining the effect of a wagon-headed, open-timber ceil-
60
BUILDING A HOME.
EXTERIORS, ETC.
61
ing, in which the essential sticks may be turned, molded,
simplest and most economical construction are assured.
and even carved, according to the scale of expenditure
Breaks in a roof, merely for their own sake, are certain to
adopted throughout the building. This treatment is sug-
gested in Fig. 26, and
DRIVE
sufficiently shows what
could be achieved in this
particular.
In regard to roofs in
general, one pitch should
2 FLOOR
predominate throughout
a building. Few things
o
give a design so ill-con-
LANDING
sidered an effect as the
employment of various
Cur BOARD
pitches of roof; where
more than one pitch is
1st FLOOR
employed, there should
exist an obvious and suf-
DRAWINGROOM
ANTE
DINING ROOM
nok26.0
EXIT
nox16.d
ficient reason for such a
variation. The simplest
SECTION.VERANDAH
rule for designing a good
FIG. 26.
and economical roof, and
VERANDA H
one that shall have an
expression of repose and shelter, is to lay out on the plan the
lines of a roof, of four sides or slopes, that shall include or
cover the largest possible portion of the house; from this
FIG. 27.
the necessary roofs for wings, dormers, etc., should always,
as far as possible, so project that one slope of the wing
look like what they are, to cost more, and to cause some in-
or dormer roof may form a continuation of one slope of
terior inconveniences.
the main roof in this way simplicity of outline and the
In the treatment of chimneys very important and pict-
6
62
BUILDING A HOME
EXTERIORS, ETO.
63
uresque effects are attainable. We are obliged to carry a
chimney well above the highest points of a roof to insure
a good draft, and in many instances the altitude of any
very near neighbors must control the height of our chim-
neys, which may be a mere square column of brick with a
mm
FIG. 28.
stone cap, or something much more .interesting. Where
expense precludes any indulgence in elaborate brick-work,
such as marking the various flues like a bunch of reeds,
bound here and there with projecting bands, very satis-
factory effects may be attained by surmounting our plain
66
BUILDING A HOME.
EXTERIORS, ETC.
67
As to lightning-rods, the country is infested with ped-
dlers who offer a useless article-either a hollow tube or a
twisted strip, together with insulators of glass, and various
childish contrivances. The virtue of a lightning-rod con-
sists in the sectional area or quantity of fibrous metal,
which should be galvanized to prevent corrosion, should be
connected with all other metal fixtures inside and outside
the building, should be fastened with a wire staple here
and there directly to the building, and should extend
below the foundations. When carried one incl above the
chimney or finial to which it is attached, it is as efficacious
as when extending upward for several feet. One lightning-
rod is only a partial protection ; there should be one at each
extremity of the building, and they should be connected
together. Theoretically, the greater the number of con-
nections with the ground, the greater the security. Any
complete discussion of this subject, and of the scientific rea-
sons for the above statements, is beyond the compass of thic
book, but what has been said may be relied on as the latest
result of scientific investigation and practical experience.
94
BUILDING A HOME.
ECONOMY, CONSTRUCTION, ETC.
95
to disintegration. Where any bold and undercut treatment
is required, terra-cotta will be found more satisfactory, both
as a matter of economy and durability, and as offering
many facilities in design and practical requirement hitherto
unprovided. Almost any desirable color can be produced,
and even combinations of different colors in the same piece.
If two individuals intend to build in the same town or
village, much money can be saved by agreeing upon some
such arrangement as is shown in Figs. 35, 36, and 37, for two
small cottages, and by building them under one contract at
the same time. The material advantage to be derived from
such a disposition consists not only in a saving of about
twenty per cent. of the cost of either building if erected
separately, but the overlapping of the kitchen wings screens
the kitchen yards, which are usually unsightly from every
point of view, and the whole pile of building can be made
much more important and picturesque, as suggested in Fig.
35, while the approach on every side may be made attrac-
tive, without considering the domestic economy that gen-
erally renders one approach emphatically the back way,
which must be planted out to hide the washing hung out
to dry and other more objectionable evidences of housework.
The usual way of employing an architect is to wait till
the last moment, and then tell him that the building must
be completed by a certain short time. How much wiser it
would be to commence consulting and planning a year or
two before building actually begins, to talk with half a
dozen different architects, examine the buildings that they
have executed for others, question the owners of these (al-
ways trying to give the client and the architect their due
96
BUILDING A HOME.
ECONOMY, CONSTRUCTION, ETC.
97
credit or blame respectively), study drawings and designs of
all sorts-in fact, educate one's self to know what one does
suppose that a man pays a few hundred dollars, more or less,
want, and, as far as possible, what one ought to want ! Such
according to the importance of his project, for advice,
a course would often result in discouragement. But even
sketches, etc., and spends much of his time in artistic and
9
98
BUILDING A HOME.
ECONOMY, CONSTRUCTION, ETC.
99
practical study and discussion, when, after all said and done,
his mind because architecture, like music, is an artificial
he concludes not to build has he wasted his time and his
art, not pretending to represent any natural object.
money ? Not at all. He has spent both in gaining a peace
In architecture, taste is governed by several well-defined
of mind and confidence in his convictions that are worth
excellences; and a building, in whole or in part, is good or
much more in comparison to the dissatisfaction that SO often
bad as a matter of fact, dependent upon no individual
follows building, to say nothing of the increase of his gen-
judgment. In the first place, there is the excellence of plan
eral information and consequent enjoyment.
to meet certain requirements, which is indisputable; and
How many men are saying at this moment, " If I built
this is closely allied to the aesthetic for the best plan is
again, I should know better than to adopt this or that, or
that one which, while it fulfills the practical needs of the
plan in this way !" We only know of two ways to avoid this
project, also admits of an artistic treatment expressive of
disappointment: either to take the trouble to educate one's
the purpose. A plan may be admirably adapted to the pur-
self, as suggested, or, as most Englishmen do, to select
pose of a building, while the building has no other merit;
an architect on whose taste, ability, and character you can
but this only shows that other dispositions should have been
rely, and let him alone. The former of these alternatives
made of the superstructure, while they should be the most
will not always prove successful, because there are those
economical consistent with mechanical and scientific prin-
persons whose natural inclinations are not artistic, and,
ciples. In regard to expression, there are the traditional, the
again, those whose natural inclinations are not practical
practical, and the sensual: sensual meaning the expression
but in this they are no worse off than most of us, architects
due to form and color, without regard to the purpose of the
and all.
building.
Against the second alternative it may be said, that, how-
Sensual beauty, in architecture, at all events, is not a
ever competent and tasteful an architect may be, he still
matter of opinion. There are combinations and relations
may not produce a work that is to your taste. But, with few
of form and color that are disagreeable to the eye for sci-
exceptions, is it not your taste that is at fault ? For, while
entific reasons, and those reasons the same for which some
any person may with some truth express an opinion upon the
combinations of musical notes are painful to the ear and
merits of a picture portraying some natural object-that is,
combinations of form and color can be refined to the same
can, without any knowledge of the requirements of the art
extent that those of musical tones can be. There are mil-
of painting, say whether the object is truly represented-
lions of people who derive more enjoyment from listening
he can not be said to have an opinion upon a matter of
to a hand-organ playing a popular air than they could
architecture, any more than upon a composition of music,
possibly appreciate from hearing Beethoven's "Seventh
without more or less special study according to the bent of
Symphony"; but do we doubt for an instant that this
102
BUILDING A HOME.
ECONOMY, CONSTRUCTION, ETC.
103
as expensive to build in our way as it would now be for us
family that has occupied the same home for two genera-
to adopt such methods.
tions.
As soon as we work in brick, these particular character-
This state of things is not favorable to domestic archi-
istics disappear, and we find, by merely meeting the exigen-
tecture, and it may be that its day is done, that in the not
cies that arise, that the features of the buildings of the
far future we shall build only apartment-houses in town
reign of Queen Anne, or of those of an earlier date in Lom-
and hotels in the country. Here and there a suddenly for-
bardy, show themselves in our designs, always with such
tunate individual may try in his own person to revive the
minor differences as our climate, building laws, and mechan-
ancestral home but he will soon die, and his mansion will
ical appliances naturally suggest. It is easy enough to be
become an institution of some sort for the amclioration of
carried away by archxologic enthusiasm, and to find no
some human misery, while his heirs mix with the throng.
artistic possibilities in meeting the requirements of modern
To the archmological mind this is a dreary outlook, but the
life but it is somewhat unreasonable to expect our clients to
occasional building of crenellated towers and the emblazon-
pay for what they do not need, when it is difficult enough
ing of heraldic devices will hardly stem the tide, if it is
to buy them a really comfortable home for the money
really rising above the old marks.
they are able to invest. Of course, life, with no embellish-
It is common to hear people say that they know no-
ments or luxuries, would be as stale, flat, and unprofitable
thing of art but they know what they like, and WC
as to live over again the first dreary years of the Plymouth
shrink from the responsibility of proving that such people
colonists, and without the excitement of fighting Indians.
have no right to an opinion, especially as it would now
But there is a vast difference between expressive exterior
be equivalent to asserting that the accompanying designs
and interior decoration and the making a new home a mere
are models of perfection. We have tried in designing
record of long-departed habits, customs, and superstitions.
them to practice what we have been preaching, while we
We may learn many useful lessons from our ancestors'
are alive to the fact that, "If to do were as easy as to
homes in all countries, but the best use we can make of
know what were good to do, chapels had been churches,
them is to take advantage of the facilities which our an-
and poor men's cottages princes' palaces. It is a good di-
cestors did not enjoy, and so accomplish results that may
vine that follows his own instructions."
record our conditions as fully as their houses do theirs.
One of our great differences is, that we build to sell. We
feel even in the country that the world moves SO fast that
at any time a railroad or the sudden growth of an industry
may drive us away ; until now it is difficult to find a
Note: Additional menoirs
regarding the history of
the Old farm site and
its purchase by the
Dorrs coube located
in a file titled:
"Memoirs of G.B.Dorr
1866-1882
R.Epp.
NORTH ELEVATION
HOUSE FOR c. H. DORR ESQ. BAR HARBOR ME.
H. RICHARDS ARCH. SCALE MIN. TO FOOT
The Inflation Calculator
Page 1 of 1
The Inflation Calculator
What cost $70000. in 1878 would cost $1154665.44 in 2003.
Also, if you were to buy exactly the same products in 2003 and 1878,
they would cost you $70000. and $4243.65 respectively.
Do you want to do another calculation?
This page was written and is maintained by S. Morgan Friedman
Note: update 2016. Cost of Old Farm mansion
in 1878 is roughly $ 70,000, in 2016
$1,767,440.
http://www.westegg.com/inflation/infl.cgi
8/16/2004
C.)
UNITED STATES
DEPARTMENT OF THE INTERIOR
NATIONAL PARK SERVICE
Acadia National Park
Bar Harbor, Maine,
May 1, 1939.
Mr. Arno B. Cammerer, Director,
National Park Service,
Washington, D. C.
Dear Mr. Cammerer:
I have given Mr. Hadley a brief statement
to enclose you in regard to Oldfarm, along with what he has
written in answer to your request for figures from the
Town Assessors' book and has just mailed you. I now write
a further word concerning this and on some memories the
question has brought up.
In 1878 we returned from Europe - my father, mother
and I - after a stay abroad unexpectedly prolonged by my
older brother's death in New York two years before in the
summer of 1876, while studying law in the office of an 01-
der friend, Mr. Louis L. Delafield, one of the leading law-
yers of the country at that time.
We had planned returning home ourselves the fall of
that year and building a permanent summer home at Oldfarm
on a site my father had already purchased a half dozen
years before. My mother was at work over plans for this,
studying some of the old English country houses, when a
cable reached us, telling of my brother's sudden illness,
followed immediately after by another informing us of
his death.
Bar Harbor, when we returned in the fall of 1878, was
just recovering from the effects of a typhoid epidemic two
years before, brought on by the rapid growth of the place
as a resort and lack of realization by its citizens of the
need or corresponding sanitary measures. It had learned
its lesson, however, and steps were in progress to correct
UNITED STATES
DEPARTMENT OF THE INTERIOR
NATIONAL PARK SERVICE
2. Director 5/1/39
the evil, but the effect on summer life, when we returned,
and commenced to build, still lingered; no land was being
sold, no houses built.
Ours at Oldfarm as the first house to be built for
summer residence, spaciously and comfortably, on Mount
Desert Island and the regutation of it as the work went
on gave confidence to others, starting what was known
afterwards and long referred to as the &Bar Harbor boom.
t
The price of lands along the shore went up a hundred per
cent within six weeks that summer and building continued ac-
tively thereafter for years to come.
The Oldfarm house was built for the first storey up
of granite of a warm reddish have from the nearby Gorge
and above that was covered with shingles hewn out of Cali-
fornia Redwood, their tone blending well with the granite
and still remaining, after all the years, untouched by
decay.
We had for architect Henry Richards one of the old
Gardiner family of Gardiner, Maine, who had married the
daughter of my mother's early friend, Julia Ward Howe.
Henny Richards was then a recent graduate from the archi-
tectural school of the Massachusetts Institute of Technology
and worked in well with my mother in the plans which she had
made, producing a house that has ever remained for me one
of the most attractive, home-like and best-fitted to its
setting built on our eastern coast.
The seale of wages at that time was low, one dollar
to a dollar and a quarter a ten hour day for ordinary labor;
two and a half to three dollars for skilled. The work was
done by the day and was sound throughout and good. My father
and mother were building for the future and spent liberally
upon the work.
When all was done, my father told me one day that the
house and the work done upon the grounds connected with
it had goat seventy thousand dollars, an amount far greater
than it would seem t oday.
UNITED STATES
DEPARTMENT OF THE INTERIOR
NATIONAL PARK SERVICE
3. Director 5/1/39
But the work has long since justified its cost
in its enduring quality and the fitness and pleasantness
of the home constructed.
Yours sincerely,
[G.B.DORR]
GED-0
[Oldfarm Tract1]
The site occupied by this home is that of one of
the earliest cultivated farmlands on the Mount Desert
coast, settled by migration from Cape Cod. This farm-
land, with the woodlands and wild lands associated with
it, is, owing to the bold, rocky character of the coast
beyond, the last tract of farmland character capable of
being cultivated upon the western coast of Frenchmans
Bay or the coast beyond until Seal Harbor and the island-
sheltered entrance to Somes Sound is reached. It also
fronts directly upon the last good harbor for small
vessels along that whole stretch of coast, lying closely
outside the extensive sheltered basin of Upper Frenchmans
Bay created by the breakwater extended by the Government,
at great expense, from Round Porcupine westward toward
the Bar Harbor shore, with passage-way left open between
for smaller craft.
The original Oldfarm grant acquired by my father
extended back from the Compass Harbor shore and the
Storm Beach point beyond for a measured mile, ending
on the all but precipitous slope of Champlain Mountain,
2.
the easternmost mountain in the Mount Desert Island
chain, which, with Bear Brook and Beaver Dam Pool at
its base, was one of the earliest gifts of land, made
by myself, which now constitute Acadia National Park.
This Oldfarm tract, which, in its entirety, I
inherited from my father, is one of extraordinary in-
terest and variety, with its harbored shore, its cul-
tivated farmland, its bold granite heights above the
cottage that I now occupy, its tiny lake, Compass Harbor
pond, and the stream that winds its way down from it to
the harbor. And along with these the tract across the
public way, the Schooner Head Road, which I gave early
to form part of the group of public reservations that
presently became the National Park.
Wide extended as the Park now is, it has, even yet,
no frontage upon any harbored shore until Somes Sound is
reached, midway of Mount Desert Island. The Oldfarm tract
I now offer will fill this want, and in the most complete
and satisfactory way.
3.
The house itself, Oldfarm, built by day labor
under my father's, my mother's and my own direction
in consultation with the architect and the builder,
is, owing to the care taken of it, in as good. con-
dition now as it was when it was finished, sixty years
ago, and no repair to it is needed, within or without.
It occupies a magnificent situation above the shore and
harbor and is completely furnished, having been rented
to friends of mine at intervals throughout the years.
This furniture is included in my offer. Private roads,
avenues and foot-paths connect the house widely and
directly with the lands now already included in the
National Park, and it seems more natural and right to
have the Park extended across the public way to Compass
Harbor and contact with the sea and to the house that was
my own.
[G.B.DORR]
STEPPING WESTWARD
BY
LAURA E. RICHARDS
FOLIA
DESTAULION
And stepping westward seemed to be
A kind of heavenly destiny.
-WILLIAM WORDSWORTH
D. APPLETON AND COMPANY
NEW YORK : LONDON : MCMXXXI
Laura Richard
2.
STEPPING WESTWARD
GREEN PEACE ONCE MORE
"Her smile," said my father, "is like the open-
For me, the change would have come in any
ing of Heaven!"
case. The moving finger was even then writing.
The only one of my children who could keep
Some time before this, my husband had be-
even a dim remembrance of him was Alice, the
come an architect on his own account in Bos-
eldest; now Alice has followed him, going on to
ton, and set up his modest sign in Pemberton
her own new work, as he to his. Wherever there is
Square. For some time all went well, with im-
life, there will be work; the stars may be glad of
mediate work enough to keep the fires burning,
those two strong, patient, indomitable workers.
and promise of more to come. He built houses
Shortly before this time, the City of Boston
in Boston, in Mount Desert, hither and yon; built
had decided that a new street was needed in the
castles, too, on paper; entering competitions for
neighborhood, and that its lines should pass di-
State Houses, churches, town halls; with what
rectly through the old house. Notice was served
toil, what high hopes, what disappointments,
on my father that by right of eminent domain
every young architect knows.
(splendid and sounding phrase!) Green Peace
Almost his first work was done for my father,
would be taken over by the city. The news of
in remodeling Oak Glen, changing it from a ram-
his illness transpiring, the matter was postponed,
shackle farmhouse into the sturdy foursquare
to be brought forward once more after his death.
dwelling that it is to-day. He and my father
I have never seen the street that replaced
had happy times over the plans. I like to think
Green Peace. I sometimes wonder if it justified
that S. G. H. may have had something to do with
itself. That little happy valley, lying in the
awakening the spirit of public service which has
cupped hand of Nature, sunshine gathered into
been my husband's companion through life, and
it, winds tempered for it, bird song and child
which then, in his early twenties, led him into
laughter ringing through it-all that beauty, all
work on Committees of Public Housing and the
that warmth and glow of leaf and blossom and
like.
fruit, swept out of existence to make room for
People began to seek him out; he was made
rows of drab little houses in which no one ever
Clerk of the Hospital Life Insurance Company,
stayed long. Was it worth while? W as it fitting?
Secretary of the Boston Society of Architecture
Vain question, never to be answered.
and the Boston Architects' Club; editor, too, of
166
167
3.
STEPPING WESTWARD
book, dedicated to my dear mother, has always
been one of my favorites.
1890 was to see yet another book, in speaking
of which I must pause a little.
When we came to Maine, H. R. did not en-
tirely give up architecture, the profession of his
heart. He built a number of houses in the first
ten years of our life in Maine, among them one
for Mrs. Charles H. Dorr, at Bar Harbor.
Mrs. Dorr was an old and intimate friend of
my mother's, having been engaged in early life
to my mother's brother. She was always a kind
friend to us both. When the house was finished,
she asked me to make her a visit. I well remem-
ber how one day during this visit, sitting on the
rocks below the house, and looking out to sea,
I saw a distant lighthouse, and began dreaming
and wondering as to what life might be in such
a place
So, up out of the sea, as it were, came to me
the little story called Captain January. I wrote
it quickly, and was rather pleased with it, but
when I took it to my publishers, they would have
nothing to say to it. It was too short for a long
story, too long for a short story; very sorry, but
not in their line. I think this story went to every
reputable publisher, or to all that I knew about,
in this country, and to several in England. No
326
May 2d transcription
[oldfarm Tract-2]
The site my mother, father and I, together with
our architect, Henry Richards, chose for the Oldfarm
house in the fall of 1878, was the broad, flat top of
an old sea-cliff, facing north to the Gouldsboro Hills
across the long reach of Upper Frenchmans Bay. This cliff
rose well back from the present shoreline, where the breaking
surf is now setting its makr on a new shore, thirty to
forty feet below the old one, carved evidently in a
stormier period. The gently sloping space over which the
surf rolled up to break against the cliff, was covered at
that time with dark evergreens, mingled with birch and pine.
Bald Porcupine rieses opposite, a mile away, dividing
eastern
with its mass the and northern skies, the dawn
long growing in this northern clime before the sun appears.
From the high-placed casement windows of the chamber
I chose for myself when the house was done the Sea Room
as it as called, I used to see, day after day, this
wonderful, slow breaking of the dawn, with the bold rounded
mass of the Porcupine black a gainst the rowing light reflected
in the Bay, then changing insensibly to greena the light
grew stronger.
2.
To the west of the site we built on, cliffed also on
ed
that side, a long level line stretch away, making what
was at that time the cobblestone or sea-wall beach behind which
had lain a considerable mass, as I discovered once on
digging down for water, coming at nine feet depth on smooth.
glaciated rock with the characteristic fine blue clay
left everywhere by the over-riding ice-sheet of the last
glacial period. In this I found shells of a shell-fish extinct
in the regional waters now, but extant still in the arctic
still. I gave these shells, in which my father took great
interest too, to a friend of ours, Dr. Henry Chapman of
Philadelphia, who presanted them to the Philadelphia Natural
History Museum, where they were iden ified and placed.
[oldform, the House]
Oldfarm, the house, was built by the day, and most
extraordinarlly well. Our architect was Henry Richards
of Gardiner, Maine, a recent graduate of the Massachusetts
Institute of Technology, who took the keenest interest in
his work and followed it closely, consulting constantly
with my mother, my father and myself as the work went on,
unhampered by any contract. Whatever changes suggested
themselves as the work progressed, adding to the comfort
and convenience of the house, were promptly made, for we
planned for the future and an enduring home.
The lower story of the house was built of granite,
using, for effect's sake, the old oxidized surface from
a new quarry in the Gorge opened for the purpose; cut
stone was only used for the window frames and doors and
the effect was excellent. The rest of the house was
splendidly framed in wood, the best Maine could supply,
with strong and heavy beams that made the structure of
this portion as enduring as could be built in wood. The
upper stories and the roof were shingled with California
Redwood, imported for the purpose. The Redwoods all possess
some quality that prevents decay -- they never rot, though
they may wear thin and crack with time. This was a suggestion
2nt
of our architect, who used them for their warm, reddish
tone, fitting well with that of the granite used in the
lower floor.
The house was built sixty years ago the present
year - 1940 - and no renewal or repair even of these
shingles has ever been required, save for those upon
the roof which ultimately wore thin and cracked and
which I had replaced, as better fitted to the climate
and exposure, with the best native cedar shingles pro-
duced in Maine.
We planned the house spaciously, that we might
have our friends come to stay with us freely, and it
became at once, with the rare gift for entertaining
that 117 mother had, a social center of the pleasantest
sort. It is the recollection of those days and the
good times we had that makes me desirous now of making
our old home serve the Government in recreation and in
rest, if it so might be, for those who shape, at wash-
ington, the policies of the National Government.
[oldfarm Architect ]
last quarter of record
fresh beginning after interruption.
the Oldfarm house was built under plans prepared by
Keury
one of the best younger architeots of his day and as
Rehards
thoroughly as could be, making no sacrifico to cost.
It is in as good condition now as it was when first completed and
the only change's made have been those needed to keep it level
with the times in all new development.
Electric lighting was unknown when the house was built
and for twenty years the reafter at Bar Harbor. Thanxixx
gracity
So with the town water and SO with the telephone. But all
that has been needed to keep it abreast of the time has been
added. Life was simple in t he 1880° 8. So long H9 my mother
and my father lived, Oldfarm was the scene of constant
hospitalitity. The house was- is specious and was kept always
full with delightful company. My father died
first in 1893, my mothr seven years later. Ever delighting
to havo friends about her, my own G specially.
Oldfarm Construction ]
Tr. May 13
The house we had looked forward to and planned for so long
Europe after
we started building at once on our return from/a stay,
unexpectedly long,
Start over
The house we had planned for and looked forward to
and looked forward to so long we started to build at once on
our return from Europe in the autumn of 1878, after a stay
unexpectedly prolonged.
Almost immediately after landing,
we came down with our architect, Henry Richards, to determine
on our site and set things in motion. My mother soon returned
to Boston but my father and I stayed on, studying and
planning until the approach of winter made us thankful
to return to Boston. The next spring we started in good
earnest, our plans worked over through the winter contributing
we made
our part. My mother had been most interested during a stay
in England in the work of William Morris , architect and
designer, (which she had seen at an exhibition a year
or
two before and worked with our architect, a mo st happy choice,
to carry out some of the ideas which she had got from them.
The practical part my father and I contributed, but the artistic
was hers and her architect's, young, enthusiastic, capable of
absorbing new ideas. It was the first house at Bar Harbof/
to be really well built; and well built it was with nothing
2
2.
spared in work or material. The first storey we built of
granite split out from tumbled boulders in the gorge,
weathered and warm-toned, save for where cut stone was
water-table (*?)
necessary for the
and the windows, and
at the last some brick was used that added their touch of
color to the warm-toned granite. Above that first storey,
all was shingled with shingled of t he warm brown, never
rotting California Redwood, which, on all vertical parts
of the house remain upon it still.
Great chinmeys of brick rose above the shingles
promising gnerous warmth, a promise which they have well
fulfilled.
In the interior, the frame was built with extra
strength-- my father saw to that-- while all the interior
skilfully and
finish was carefully worked out from the best of Michigan
and White Pine, Maine wood of similar grain being no longer
floors
obtainable.
The, xxxxxthroughout were of well-seasoned,
native oak, birch and maple, and better one could not have.
The carpenters 6 and the Maine folk have a genius for that work,
took great pride in thetxx their work and endless time about
it. The result, when we at last moved in the summer of 1880,
the carpenters still working upon the house, was a delightful
home and a home it has proved to beat any season of the year.
[oldform Property Development ]
surveyed
Have the ro se garden lot as laid out in my intention
to take in my mother's old flower garden. from which at
us back
a
beginning the Park developed. This takes thick to the
c.1885
middle
EXERY 1880's when the garden was fo rme d. The road to the
shore lot above Storm Beach has its own entrance from The
Way Road and the rose garden, as intended, will be entirely
screened from it by the ridge of rock on the east, with the
will
brook on the west beyond. This road which bound the lot
upon the east and south and it will be bounded on the
west with the path through to and beyond The Way from
Oldfarm, being open at some point to the- entrance from
the path from Oldfarm, which it nowhere will
A plan should be drawn by Breeze and Sherman for the
development of the parking ground where the tennis sourt
now is, the soil being carefully carefully preserved for
use elsewhere in the garden. The ent rance to the
rose garden will be byond the cedar he dge to the southeast
and the opening through the hedge be allowed to close.
The whole needs to be drawn out in detail and studied.
Restrictions against building or di sfigurement
or other use than flowering plant exhibition should be
placed upon that portion of the nursery land above The
Way road to the south, as far as KKX to the first crossroad
from which northward the direction of the watering pipe
[obdfarm and Admiral Mahan ]
Diotaphone on Tuesday evening, May 16, 1939.
60
The father of Admiral Mahan, famous a generation
later for the books he wrote on the influence of Navies on the
world affairs, which were much widely read and discussed on
both aides the Atlantic. These books are in my Oldfarm library
and have given meaning to the speotaolo when I have watched from
1to poroh the American and British squadrons, sometimes together,
sometimes apart, come steaming into Frenohmans Bay on leaving it.
Professor Mahan died at West Point three and a
half years later, in the winter of 1871-172, and my father
wrote to his widow, asking if she would be sell to him at her
own price lands that she and her husband had bought at Mount
Desert, and she sold them.
In 1875, when we were planning to build the
following year at Oldfarm, returning from Europem my father
purchased from Mr. Lothrop hhe share he had taken in the land
first bought, completing his ownership of the original Henry
Higgins' traot, whose deed from the DeGrogoires is in the Oldfarm
title
Sunday
[oldfarm Pleasure gardens ]
$71 2- page /
This search after my father's English ancestors,
all of them whether ministers or not, belonging to the
Puritan fold, material for which my father had brought out
from home, proved of the greatest interest to both of us ,
taking us into towns and places we should not have otherwsie
have visited and giving us real insight into the England
of our origin. My mother is greater interest lay in the
London galleries and their famous pictures and the famous
old country seats with their gardens and their pictures,
left open to the p blic on certain days and hours, upon payment
of a Iee to the housekeeper or guide appointed to show people
In
over and- who took interest enough to come./ this too,
the gardens especially, I took myself the greatest interest;
and the memory of them , seen then or in later JEXEX,visit
to the English countryside, led directly on upon our return to
Mt. Desert
America to the building of our old home at xxxxxxxxx
and
the
establishement
(bring to me to fit in if necessary
of the first true pleasure garden on Mt. Deart Island and,
on
SO far/ as I know, xxx the whole Acadian shore from the
Fenboscto east, -- and a beautiful garden, too, it was with
its flowers of the olden type and bedding plants only to
fill in the caps in the later summer when the earlier
bl omin- perennia S had done their season's work of insect
life attraction through color, form and fregrance, and were
ripening their seeds.
[oldfarm Tidal Pool
To the west of Dorr Point, there wás a flat
stretch of rock large enough for a salt-water bathing
pool and at a level SO much below the Point that salt
water from the harbor flooded over it at high tide.
This space was, at a guess, some forty or fifty feet,
ending toward the harbor against a somewhat higher rock
of lava character, with surface of deep red, from which,
at one time, I extended as a pier a float for my sailing
boat. The lower stretch of level rock, between this and
the Point, I walled about with granite blocks from my
quarry, leaving certain open spaces between the blocks
for the tidal water to flow in and out. When the tide
was out the water that had come in, filling the basin
below these inflow spaces, leached away through the
rock and I planned some day to cover the lower portion
of the basin with a thin layer of cement that would
hold the water in, letting it warm with the air and sun.
This should be done now under the Government's new owner-
ship. The cost would be but relatively slight and it
would become a most attractive feature of the Point.
2.
Opposite the Pool, a short distance across the
Point, there is a smooth level rock of laval character,
rising near the level of high tide, fronting the sea
and descending vertically into it at considerable depth.
It made a splendid place for a deen plunge when the tide
was right and running down from the house before I
dressed in the morning I used to plunge in for a
glorious swim. But, the swim over, it was difficult
to climb out, and to mest this I had rungs of thick
iron pipe driven into the vertical face of the rock
far enough down to make it possible to climb out at
any tide and had thereafter great joy for years in my
plunge. This will make a splendid contrast to the
sun-warmed, sheltered water in the pool for those hardy
enough to brave the cold sea-water and take the plunge.
This, too, along with the pool, should be maintained.
This Point, which I have named for my father, its
summer-resident owner, Dorr Point, is throughout of a
most picturesque and interesting character, owing to
the hard, resistant character of the laval rock. In
storms, the surf, sweeping in from the outer bay, breaks
magnificently, sending up great sheets of spray.
3.
Inside the Point there is a beach of true quartz
sand, the only one on the whole shore, and from it
before we came into possession they used for chirneys
and the like such small amount of sand as was needed.
Some of this sand still remains, rolled as above the
shore. To this same sheltered beach the light-keeper
from DOE Rock used to row when the sea was still.and
beach his boat while he proceeded on to the village
for supplies.
Egg Rock, the eastern end of a mile-long granite
resf that fronts the open sea across the broad, un-
sheltered entrance to Frenchmans Day, rises up soli-
tarily some forty-odd Pest above high-tide level;
and against it storms, sweeping in from the east,
break at times with terrific force. On one such
occasion, I remember the lighthouse keeper to have
told me, great seas swept over the whole Rock and
bettered in the strong oaken door with its iron bars
and flooded with salt water the well in which fresh
water for the keeper and his family was always kept.
the whole structure quivered with the jar but held
firm. This ledge on which the lighthouse stands was
a great place in early days for sea birds to breed --
hence its name.
[G.B.DORR]
Dorie
for
[Oldfarm" Park Origins
August 6, 1941
Oldfarm itself, our old family home through
the long spring, summer and autumn seasons we used
to spend there, was built upon a craggy height over-
looking the shore and point, with a beautiful view
across the Bay to the north, but sloping off south-
ward to the Way Road, with garden ground and lawn.
To the west the same craggy height breaks down
abruntly to the lower level of the Compass Earbor
shore, well separated by the different level from
the Oldfarm tract. This Compass Harbor property,
with its delightful beach of clear quartz sand and
its broad level acres extending back to the Town road,
we intended, from the start, should become a distinct
and separate property which should, in due time, be
sold, when a future friendly neighbor should come
along to purchase it.
It is this land, extending back to The Way Road,
and with its own separate entrance from Main Street,
that I am now planning the United States should take
and pay for, in part return for the annual rental the
Government has been paying me these many years for the
2.
office and headquarters site opposite the Athletic
Field, which, by the arrangement now entered into,
becomes my free gift to the Park.
Other compensation to the Government for the
sum required -- its rental changed to permanent and
assured ownership -- has been well studied recently
and worked out in a manner that the Government, I
feel, will welcome when it, too, shall have made a
study of it through its r representatives on the spot,
leaving the headquarters site itself and my Oldfarm
home upon the shore to come to the Government through
my own free gift, not in any part by sale -- an arrange-
ment which, with the long and intimate association with
it I and my family have had, I greatly prefer, for the
story that it tells of my own strong personal interest
in it and its intimate association with the origin and
first development of the Park.
That it may carry better the story of the life
and days out of which the Park has sprung, my desire
has been and is that the simple setting of those
earlier days and the restful, home-like character
of the life that was lived there and has given its
3.
spirit to my work should be retained, and that all
Nario your old vision ANP from
connected with my gift of what has meant so much to
me and mine, should remain, as guest house to the
Park, as restful and peaceful still as in the fast-
within
receding days gone by, and should make its contri-
bution to the story of the past as simply and at as
slight expense to the Government as good care makes
possible.
To this end I have been giving lately my best
thought, and trust that the Government, as represen-
tative of the National Park Service, may find it good.
[G.B.DoRR]
0000
DOI
NORTH ELEVATION
HOUSE FOR C.H. DORR ESQ. BAR HARBOR ME.
H. RICHARDS ARCH, SCALE
0000
EAST ELEVATION
HOUSE FOR C. H. DORR ESQ. BAR HARBOR ME.
H. RICHARD$ ARCH.
SCALE
0000
WEST
ELEVATION
HOUSE FOR c. H. DORR ESQ. BAR HARBOR, ME.
H. RICHARDS ARCH.
SCALE MIN. TO A FOOT
3
BALOONY
Batcony
Covered
0
DALEONY
CHAMBIR
CHAMBER
HAMOER
CHAMBER
CHAMBER
CHAMBER
BATH
Roomy
HALL
HALL
Are mine
OU
HALL
HALL
CLOUD
BATH
CHAMBER
CHAMBER
BATH
(o
CLOSET
Room
LANGING
CHAMBER
CHAMBER
PLAN
OF
SECOND FLOOR
Scale 4.1-0"
OLD FARM
House Of GEORGE 0 DORR
BAR HARBON. MAINE
D
COMPASS HARBOR
LOCATION Pinner "OLLINEM Horsi
10/1/2020
1 - 25 of 297 results - Only showing results with images. . The History Trust
Additions and Alterations to House for Mr.
Alfred M. Coats Northeast Harbor Library
Plan for the Treatment of a Portion of C.
W. Bergner's Place Northeast Harbor Library
my
SOUTH ELEVATION
HOUSE FOR C.H.DORR ESO. BAR HARBOR, ME.
H. RICHARDS ARCH. SCALE x ##. TO
House for C. H. Dorr Esq.
Northeast Harbor Library
View Item
X
The Redoubtable Lady of Reef Point
Holy Redeemer Roman Catholic Church
Northeast Harbor Library
Northeast Harbor Library
AE31
https://historytrust.net/digitalarchive/find?query=&view=4&filter=1&leaf_place=Bar
4/6
1.
TERRACE
VV
LAUNDRY
SERVANTS
BUTLER'S
ILBRARY
DINING ROOM
PARTRY
DINING ROOM
8.-
RM.AHS
CAMINO. 10
PARIOR
PIAZZA
COVERED TERRACE
-
PASTAGE
STAIR HALL
KITCHEN
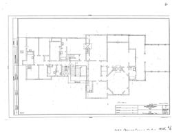
casms.
TRANTICK
HALL
FM.MO.2
LHI
DEN
ENTRANCE FORCH
i SCALE =1'-0"
UNITED STATES
REGION
DEPARTMENT OF THE INTERIOR
NATIONAL PARK SERVICE
SHEET / 3
CONCURRED
OLD FARM
DRAWING NO.
NP-Ram
BASIC DATA-UNDATED BLUE HUNT. STAMPED is STROUD REDUCT REAL ESTATE
&MEASUREMENTS TAKEN or BAR NAREOR
APPROVED
ACADIA NATIONAL PARK
2865-1-1
1100 Comilee Co.,Lr 1941 6/07
2.
14-1-0-
UNITED STATES
REGION
DEPARTMENT OF THE INTERIOR
NATIONAL PARIK SERVICE
SHEET
CONCURRED
DRAWING NO.
NP-ACA
APPROVED
ACADIA NATIONAL DARK
2765-1-1
1941.
6/0
3
THE
SEAT 20"HIEN
SEA
CHAMBER
CHAMBER
SHELYES
LINEN
ALCOVE BALCONY CANVAS
CLOSET
HALL
PASSAGE
Hook
CLOSET photomes
BATH
the
fl.
ROOM
TANK
CLOSET
PASSAGE
CHAMBER
CHAMBER
RESIDENCE of ME. GEORGE B DORR
BAR HARBOR MAINE
SEAT
SEAT
THIRD FLOOR
1/4-IMCH # : / FOOT
UNITED STATES
REGION
DEPARTMENT OF THE INTERIOR
NATIONAL PARK SERVICE
-
I
SHEET 3 OF 3
CONCURNED
OLD FARM
DRAWING NO.
APPROVED
ACADIA NATIONA PARK
2765
A105 194H c
8/15/2002
MAINE HISTORIC ARCHAEOLOGICAL SITES INVENTORY
SITE NUMBER
SITE NAME
ETHNICITY I TYPE
ME 028-005
"Old Farm" Estate
American domestic
PERIODS OF SIGNIFICANCE
Centuries
Unknown
re-Columbian
16th
17th
18th
19th
20th
21st
Date statement late 19th century - post 1927
STREET OR HIGHWAY
CITY OR TOWN
COUNTY
Old Farm Road
Bar Harbor
Hancock
POSITION
NAD 1927 (USGS Topos)
UTM Zone 19 E564285 N4913553
USGS
7.5
min
Quadrangle
ACREAGE
(as measured)
NAD 1983 or WGS 1984 (GPS) UTM Zone 19 E564327 N4913779 44 Seal Harbor
more than ten
GEOGRAPHIC DESCRIPTION
OWNER
On Compass Harbor
U.S. Gov't.
SITE CONFIRMATION
Identified in the field by n/a, recent memory
Inferred from reference (literature or informant)
BIBLIOGRAPHY References, reports, and informants
Mastone, Victor T. and Alan E. Strauss, Archaeological Investigation of a Portion of the Areas to be Deleted from Acadia National Park, on file, MHPC,
Augusta, ME, 1979.
Anonymous, Historical Resources of Acadia National Park, Brown University, 1979.
Bar Harbor Summer Residents Assoc., Map of Bar Harbor (1904), Bar Harbor, Me, 1904.
Bar Harbor Summer Residents Assoc., Map of Bar Harbor (1927), Bar Harbor, Me, 1927.
Colby, George N. & Co., Atlas of Hancock County, Maine, Halfpenny & Stuart, Ellsworth, Maine, 1881.
Anonymous, Map of Mount Desert Island, US Geological Survey, 1875, 1882, 1885, 1922, 1935, 1942.
RECORDED BY
INSTITUTION
DATE ENTERED
Bradley, Robert L.
Maine Historic Preservation Commission
10/1/1979
SENSITIVE DATA EXPRESSLY EXEMPT FROM THE FREEDOM OF INFORMATION ACT
DO NOT REPRODUCE WITHOUT WRITTEN PERMISSION FROM THE MAINE HISTORIC PRESERVATION COMMISSION!
Estate of George B. Dorr, one of the founders of Acadia Nat'l Park. Property consisted of main building, servants quarters, stables, and other
outbuildings. Brown University study site number 45.
Update by Alaric Faulkner, U. Maine, 8/13/98:
In August of 1998, Faulkner attempted to pinpoint this and other sites in the vicinity of Acadia National Park and assign them proper UTMs so that
they could be incorporated into a GIS map of historic archaeological resources in the Park. Approximate UTMs have been assigned according to
the original site description, and should be reasonably accurate. Color photographs below date to that visit.
Update by Shannon Wright, 2-13-2002: This site was assigned ASMIS (Archeological Sites Management Information System) #ACAD00025,
managed by the NPS, several years ago. Site visits identified: manorhouse, two servants quarters, barn, two additional buildings, saltwater pool,
several pools and garden paths, tennis court, and cutting garden. Across the road were identified the Storm Beach House, which is the earliest
building of the estate and used by George B. Dorr when older. It is still standing and used for park housing; a garden and garage are affiliated with
it. George maintained a nursery to the SW, most of this became non-park, but portions may remain. Charles Dorr (George's father) began this
estate (one of the earliest cottages) in the 1870s with Henry Richards (architect) and Alexander Oakley (designer). It was added to substantially
over the years and more research will likely identify more features.
There is extensive information on this estate in Acadia NP records including photographs taken by the park when the house was added to the park
lands in 1946.
Also, black and white photographs, like the ones below, can be found in
Turner, Loretta. When Bar Harbor was Eden. Images of America Series. Arcadia Press, Dover New Hampshire, 1995.
and
Hill, Ruth Ann, Discovering Old Bar Harbor and Acadia National Park. Down East Books, Camden, Maine, 1996.
Source : Farle Shettleworth. MHPC. Dec. 22, 2008.
http://130. 111.165.142/fmi/iwp/cgi?-index=30&-recid=40124&-relatedrecid=40124&-buttonscri
12/22/2008
COMPASS HARBOR
SKETCH
OLD FARM AREA
COMPASS HARBOR
sus PORTION of EXHIBIT TOBE OPEN WITH OVERHEAD TRELLIS
WA PORTION OF EXHIBIT TO as ROOFED
*
EXISTING BRICK TERRACE
WALLS TO REMAIN
WALLS TO BE REMOVED
WAYSIDE
BASEMENT TO BE FILLED TO PREVIOUS 1ST FLOOR LEVEL
THE
FLOOR EXHIBAT BRICK
REMIBIT
AND
PATTERN
AS THE
TERRACE
STORE TO BE SALVAGED FROM RAZED
PORTION OF THE HOUSE
DIRECTION & HUMBER OF PHOTO
VOLOG
(SEE ATTACHED SUPT DIR MEMO APRIL
TO BE OBLITERATED ELANDSCAPER
WAY SIDE MEMORIAL COMINT AREA
OPERATIONS
SUPT'S RESIDENCE
(BLOG HEID
PROPOSED
CAR PARKING
INTERP
PROPOSED IS
REGION
CAR PARKING
2
VICINITY MAP
DORR HOME MEMORIAL EXHIBIT
SCALE 1"a 20"
DORR HOME SITE
4
SHOWING PROPOSED PARKING
FOR MEMORIAL EXHIBIT
SCALE 1":100
3.
OTHER
PREPARED
STUDY
SEE SUPT GIVENS 018 MEMO OF 5-9-96
HAL
SCALE AS SHOWY
UNITED
STATES
DEPARTMENT OF THE INTERIOR
NATIONAL
PARK
SERVICE
5
DIVISICN-DESICN CONSTRUCTION
BAR HARBOR
BASIC CHIGGINS REPORT 70.46
PERSPECTIVE VIEW
DORR
HOME WAYSIDE MEMORIAL IX HIBIT
MEMORIAL EXHIBIT
NP-ACA
OLD FARM ARSA
SCALE 1"10"
APPROVED
2720
ACADIA NATIONAL PARK
5/7/56
s remains
grove
seawall
pipehole
briak firepisce
stonepile
building site?
downed util pole P36arsythis field
rockwall end steps
stairs end
stonews Woondation
Trize
standpipe
path entrance
rockwall-path start
Jone stairs
stonelined signamoationpipe
water.ap
Ons steps
survey
Standpipe
path-social?
fountain/well?
steps
well-spring
neighbor property road
foliage blocking
Danemoop
survey stone
0 steps
Single staphe-bricks
rk
path
terrace
pond stream
driveway?
s
kitchen stebs
sunverjastine-Alte boundary
covered tenace
brickpile
maids path to house
steps
concrete slab
Oldfarm entrance
vertical pipe bldg foundation
slab bridge
O
house repy-chawHeur?
macadam
waterfall garden site?
house remains-moidsaterspigot
path
6-in vertical pipe
survey stone
orange azalea tree pond stream stonewall
survey stone
park lot
gate
entrance road
apple trees
pond stream
stonebrdge/weterfall
path jct
vemal pool
cement bridge support
bricks
bridge over stream
3-inch pipe
road jct
imigation pipe
stonebridge/wf
cement curbing
ANP trailpost
daffodils
out granite pieces
claypipe
cutting garden site?
O stonebridge/wf
gazebo floorwstenheel?
tennis court site?
old road
tossed metal culvert
O chickentripe
irrigation pipe
tossed slabs
pond stream
Oldfarm Road
pond outlet
road entrance
3-stone roadblock
Storro Beach cottage
copy I
March 2C16
Cultural Landscape
Inventory and Assessment
FRENCHMAN BAY
Oldfarm Property
Acadia National Park
Bar Harbor, Maine
Existing Conditions, 2015
Long Steps
to
Point
OLMSTED
CENTER
Age
Pool
Remnants
Maintenance
Oldfarm
National Park Service
Marior House
Foundation
Olmsted Center for Landscape Preservation
Dorr Point
www.nps.gov/oclp
Storm,Eeach
Cattage
tknob,
Tennis Courtry
SOURCES
Terrace
Schooner Head
Terrace
Path
1. ACAD GIS files
Area
Garden Area
2 Field Surveys, November 16. 2015.
Oo
3. Town of Bar Harbor: Property Tax Maps
4 1938 Map of Property of George B Dorn
5. 1946 Suggested Development Plan Dorr Property
COMPASS HARBOR
@
6 1948 Aerial Photo
Historic Driveway
Bed
Outbuilding
DOG
Sites
DRAWN BY
O
Ericka Duym, OCLP. FOA, 2016
AutoCAD Map 3D, Adobe Photoshop and Illustrator CSG
Caretaker's
Are GIS 10.2
Cottage
Nursery
24
Caretaker's
Area
Area
in
Cottage
LEGEND
Stone Bridge
Site
Existing roads
Compass Harbor
Existing Buildings (Park owned)
Trail
Compass Harbor
Pond
Existing Trail
Garage
¥
Acadia National Park boundary
Site
5 Feet contour
Foundation remoants and building sites
Historic road bed
Deciduous and Evergreen trees
SEE DRAWING 2
to
of
Collupsed
Bridge
Parking
NOTES
1. All features shown in approximate scale and location.
125
250
500'
DRAWING 1
LIST OF CLASSIFIED STRUCTURES (LCS)
SINGLE ENTRY REPORT
Identification
IDLCS: 41370
Structure Number: HS10
Structure Name 1: DORR POINT - GRANITE WHARF RUINS
Structure Name 2: DORR ESTATE - BOAT SLIP RUINS
Structure Name 3: OLDFARM
Park Alpha Code: ACAD
Name: ACADIA NATIONAL PARK
ORGCODE: 1700
County: HANCOCK
State: ME
Regional Office: NORTH ATLANTIC
Subunit ORGCODE:
Name:
Alpha Code:
County: HANCOCK
State: ME
Number of UTM's:
0
Zone/Easting/Northing
Significance
NR Status: INELIGIBLE-MANAGED AS RESOURCE
Date:
/ /
Significance: NOT SIGNIFICANT
NHL: NO
Date:
/ /
Significance
"OLD FARM" LAND GRANT WAS PURCHASED IN 1868 BY CHAS. H. DORR (FATHER OF GEORGE B. DORR, FOUNDER OF
ACADIA NP). EXTANT GRANITE BOAT SLIP & BULKHEAD REMAINS ARE UNDOUBTEDLY DORR IMPROVEMENTS BEGUN IN
1876-79.
Historical Information
Period of Construction: HISTORIC
Date: 1879-CA. ? (BU) Designer:
( )
Date:
-
(
) Designer:
( )
Date:
-
(
) Designer:
( )
Date:
-
(
) Designer:
( )
Functions, Uses, Materials, Impacts, and Condition
Historic Functions
Current Uses
LANDING (WHARF, DOCK)
RUIN
Buildings
Materials
Structures
Foundation:
Sub-structure: GRANITE
Framing:
Walls:
Roof:
Super-structure: GRANITE
Other:
Volume:
Description
RUINS OF GRANITE BULKHEAD @ DORR POINT FOLLOWED SHORELINE IN ROUGH SEMICIRCLE, BISECTED BY GRANITE
I
WHARF; MASSIVE QUARRIED GRANITE BLOCKS NOW MOSTLY STREWN ABOUT THE ROCKY BEACH. WHARF & BULKHEAD
ALSO INCORPORATED EXIST'G. ROCK OUTCROPPINGS.
mil
Impact Level: MODERATE Impact Types: INUNDATION (FLOODING)
EROSION
Condition: POOR
page 1 of 2
PHOTO GUARD # 3224
LIGHT IMPRESSIONS
Rochester, NV
LIST OF CLASSIFIED STRUCTURES (LCS)
SINGLE ENTRY REPORT
Identification
IDLCS: 41369
Structure Number: HS09
Structure Name 1: DORR ESTATE - HOUSE AND TERRACE RUINS
Structure Name 2: OLD FARM - HOUSE AND TERRACE RUINS
Structure Name 3: OLDFARM
Park Alpha Code: ACAD
Name: ACADIA NATIONAL PARK
ORGCODE: 1700 County: HANCOCK
State: ME
Regional Office: NORTH ATLANTIC
Subunit ORGCODE:
Name:
Alpha Code:
County: HANCOCK
State: ME
Number of UTM's:
0
Zone/Easting/Northing
Significance
NR Status: INELIGIBLE-MANAGED AS RESOURCE
Date:
/ /
Significance: NOT SIGNIFICANT
NHL: NO
Date:
/ /
Significance
RUINS OF "OLD FARM," OUTSTANDING EARLY EXAMPLE OF "COTTAGE" ARCHITECTURE ON MDI; ERECTED FOR CHARLES
H. DORR (FATHER OF GEORGE B. DORR, FOUNDER OF ACADIA NP) OF BOSTON. DESIGNED BY ARCHITECT HENRY
RICHARDS (1848-1949), A GARDINER, ME. NATIVE.
Historical Information
Period of Construction: HISTORIC
Date: 1876-1879 (BU) Designer RICHARDS, HENRY
(A)
Date: 1919-CA?
(AL) Designer:SAVAGE, FRED
(A)
Date: 1951-
(RM) Designer:]
(O)
Date:
-
( ) Designer:
( )
Functions, Uses, Materials, Impacts, and Condition
Historic Functions
Current Uses
SINGLE FAMILY DWELLING
RUIN
ESTATE LANDSCAPE
Buildings
Materials
Structures
Foundation:
Sub-structure: STONE
Framing:
Walls:
Roof:
Super-structure: STONE
Other:
BRICK
Volume:
Description
ABOVE-GROUND REMNANTS OF QUEEN ANNE/COLONIAL REVIVAL MANSION DEMOL. BY NPS IN 1951 INCLUDE THE E
PIAZZA : PAVED w/ BRICK IN HERRINGBONE-PATTERN & ENCL. w/ BRICK & STONE COPING - - AND THE N
TERRACE. RUINS OF OUTBLDGS. ALSO SURVIVE ON SITE.
Impact Level: MODERATE Impact Types: VEGETATION
EROSION
Condition: POOR
NEGLECT
page 1 of 2
20
BAR-HARBOR SHIPPING.
BAR-HARBOR'S MAIN STREET.
21
Island), but usually adequate to its summer duties. It carries
from two to five fathoms of water at low tide.
canoeists, naturally, are the Indians, who carry visitors in their
Here is a favorite anchorage-ground of famous yachts;
frail boats around the harbor and islands, or even on longer and
Iroquois, Viking, Meteor, Mohican, Adrienne, Ambassadress,
more daring voyages. Lewey Mitchell, one of these aboriginal
Wanderer, Gitana, Priscilla, Stranger, Galatea, and many
Argonauts, recently paddled his canoe entirely around the island
another renowned ocean-racer. Delightful receptions are
of Mount Desert, a distance of sixty miles, in twelve hours.
given on these vessels, whose discipline is as stringent as
The Mount-Desert Canoe Club was founded in 1886, and has
that of a man-of-war. In summer, also, comes the North-
its headquarters at Bar Harbor, with Edmund Pendleton as
Atlantic squadron: the Atlanta, in salmon-color and black;
commodore, and a membership of more than sixty persons.
the white-and-gold Dolphin; the black old Richmond; the
Its flag bears a red fleur-de-lys, couched with blue, on a white
Ossipee, Galena, Yantic, Dispatch, and others, lying at anchor
ground. The club-house, on Bar Island, was built in 1888; and
for weeks in the harbor, gay with bunting, and thunderous
its chief feature is a cheery and capacious fireplace.
Turning from the harbor and its crowded wharves, let us
with salutes. As many as a thousand blue-jackets have been
stroll about Bar Harbor. Main Street runs from near the
landed at Bar Harbor at once, to be reviewed by their gray old
admirals.
steamboat-pier to the foot of Strawberry Hill, a distance of not
quite a mile, and is lined by the chief shops of the village, and
Then there are the local passenger-steamboats, the Sappho,
several of its hotels. It is a busy, crowded street, with plank
from Mount-Desert Ferry; the Sebenoa, running up French-
sidewalks, and borders of irregular and huddled wooden build-
man's Bay; the Cimbria, or the new Bar Harbor, of Bangor;
ings. In the Oriental stores are treasures of Benares brass and
the City of Richmond, from Portland or Machias; the Mount
India silks ; at Huyler's, delicious ice-cream soda and confections,
Desert from Rockland and Southwest Harbor; the Silver Star,
Jacqueminot roses and pink pond-lilies; at Sproul's, ice-creams
from Winter Harbor and West Gouldsborough ; the Electa,
and dainty viands; at Bee's, the novels and newspapers of the
Creedmoor, and other gallant little steamers, fearless of the
day; at the Indian store, odd baskets and carvings; at Koop-
August sea.
man's and Clothier's, rare antiques and old English furniture,
The Conners and Pendleton and other boatmen have more
Norwegian silver-ware, and other precious bric-d-brac. Here,
than a hundred rowboats and canoes, and a score or so of
also, are apartment hotels ; rooms to let; the newspaper offices
yachts, besides three or four small steamers, for lease. There
of The Bar-Harbor Record, The Bar-Harbor Tourist, and The
are also catamarans, Rob-Roys, canvas-boats, cat-boats, and all
Mount-Desert Herald; the financial house of the Bar-Harbor
manner of small craft, insomuch that the harbor is at times
Banking and Trust Company; the fashionable ladies' store of
fairly crowded with little shipping. The rates for row-boats are
L. P. Hollander & Co: (with Jordan, Marsh & Co. just off the
35 cents an hour, or 75 cents with a boatman. People unac-
street); decorators, milliners, lawyers, doctors, and many other
quainted with these waters should take boatmen with them, for
offices and stores: Near the sidewalks stand the public car-
the rocks are scattered about inconveniently and there are
riages: of the village, drawn up by scores; buckboards, single-
occasional unexpected squalls, attended with little or no danger
and double and quintuple, cut-unders, and barouches, with their
to one familiar with the place, but hazardous for strangers.
drivers keenly vigilant for fares, and familiar with all the island
Cat-boats and yachts, with competent skippers, can be hired for
roads. Here; also, are the private equipages of the cottagers;
longer voyages up and down or across the bay, to the lower
dog-carts; village-carts, tally-ho coaches, phaetons, chaises, road-
Heads, Egg Rock, Ironbound, the Ovens, South Gouldsborough,
wagons, and ponderous and resplendent family carriages, with
Winter Harbor, Sullivan, or Sorrento. The most expert of the
drivers and footmen in full livery, and a silvery rattling of
Chishalnis Monest-Deset Guide book. M. Sweetser
Portland : Chisholm Brothers, 1888.
22
MOUNT-DESERT READING-ROOM.
THE SHORE WALK.
23
harness-chains. Equestrians, men and women and children, ride
costly memorial altar erected in remembrance of Gouverneur
up and down the littered street; and here and there a wheelman
Morris Ogden of New York. The church was built in 1878,
pursues his solemn way.
by the summer residents, and several services are held every
In these equipages, and along the sidewalks and in the stores,
Sunday, patronized by the wealth and fashion of the place. St.
move the beauties of Belgravia and Vanity Fair, their trim
Sylvia's Roman Catholic Church, near the Malvern, is a quaint
and well-groomed appearance contrasting strangely with the
wooden structure, accommodating 500 worshippers, and attended
unkempt surroundings. The young men, in their vivid-colored
by the Indians from the camp at Eddy Brook, the Milesian
and striped blazers, or garments of white India silk, their
dependents of the hotels and summer homes, and several well-
bright-colored caps and Tam-o'-Shanters. tennis suits or yacht-
known families. of cottagers. The altar crucifix was carved by
ing suits, äre hardly less resplendent than their sisters, the
Joseph Mayr of Ober-Ammergau, and presented by Dr. Derby.
high-bred patrician girls, dressed like Parisiennes of the Fau-
The new Baptist Church is on Ledge-Lawn Avenue; the Con-
bourg St. Germain, in trim tailor-made suits, impressive in
gregational Church, on Mount-Desert Street; and the Method-
their apparent simplicity, or fairy-like in delicate summer gowns,
ist Church, on School Street.
with marvellous pleatings, vests of India silk, panels of rich
The Indian encampment at the outlet of Eddy Brook, just
yelvet, sprayings of lace, and shimmerings of white lawn. Here
north-west of Bar Harbor, will be found a pleasant place to
come Peepy Marshmallow, and Lina Van Rooster, Chicky
while away an hour or two. These semi-savages are of the
Chalmers, and Poodle Van Ulster, and the Hon. Hare Hare:
Penobscot, Passamaquoddy, and St.-John-River tribes, mainly
and there in the background, in their moiré and black lace, are
half-breeds, crossed with French-Canadian stock, expert with
Mrs. Gatling Gunn and Mrs. Wellman Heidsieck, and even
their canoes and at hunting and fishing. The village is com-
Mrs. Stylington Ribblehurst herself.
posed of a score or two of little wood and canvas shanties, in
The social rendezvous of the gentlemen is the Mount-Desert
which are sold a great variety of aboriginal trinkets, skins of
Reading-room, built in 1887, on Birch Point, between the New-
seal and deer, baskets of birch-bark, moccasins, bead-work,
port House and Alpheus Hardy's cottage. It was designed by
snow-shoes, gulls' breasts, stuffed birds, clubs, carved tusks,
W. R. Emerson, the celebrated architect, and cost $30,000.
bows and arrows, etc. Here dwell scores of fat squaws, not
The great piazza is supported on a cyclopean wall of masonry,
clothed by Redfern, black-eyed little pappooses, and lazy braves,
near the water. The house contains the spacious hall, billiard-
idling in the welcome sun.
room, smoking-room, reception-room, parlors, library, and read-
One of the pleasantest rambles at Bar Harbor is The Shore
ing-rooms, each with a great fireplace, and beautiful architectural
Walk, 2/2 of a mile long, on the edge of a sea-bank, about 15 feet
details. The membership of the club includes many of the
high, with beautiful lawns and villas on one side, and the weedy
foremost gentlemen of the summer population, - men well
ledges and lapsing waves and open bay on the other. It may
known in New York; Philadelphia; and Boston. The president,
be entered alongside the Rockaway and the Newport, near the
is Charles T. How, the treasurer Dr. Robert Amory, and the
steamboat wharf. The first edifice beyond the Club House, on
secretary Ogden Codman.
Birch Point, is the simple little cottage built in 1867 by Alpheus
The religious welfare of the people, natives and visitors, is
Hardy of Boston, and for many years the summer home of his
guarded by several churches, which are well filled on pleasant
son Arthur S. Hardy, the author of But Yet a Woman, etc.,
summer Sundays. St. Savior's Episcopal Church, on Mount-
and also the boyhood home of J. Montgomery Sears, Mr.
Desert Street, is a picturesque building, with low and massive
Hardy's ward, now the celebrated Boston millionnaire. Alpheus
granite walls, a high timber roof, stained-glass windows, and a
Hardy died in 1887. This was the first summer cottage at
24
THE SHORE WALK.
OGDEN'S POINT.
25
Mount Desert. A little- way back is the handsome stone man-
surroundings. Beyond Redwood the path comes out on Crom-
sion built by Mr. Hardy a year or two ago. Just off the shore.
well's Cove, and the rambler can regain Main Street by follow-
is Pulpit Rock, a natural rostrum looking out upon the sea.
ing its north shore.
The next two houses on the shore belong to F. M. Weld and
At the head-o the cove stands the cottage occupied by Cal.
G. R. Minot of Boston, plain buildings, with broad verandas,
Markoe of Philadelphia. Close by is Aldersea, a lovely estate,
famous for their elegant hospitality. Back of these is Mrs.
owned formerly by Mr. Prentice of Bangor, and now by Edward
T.C.-A. Linzee's (of Boston) Yellow House; and next to the
Coles. of Philadelphia. Near Cromwell's Cove the patient
Minot place is the cottage of H. A. Grant, Jr., of Tarrytown,
explorer may find the rocky figure called the Assyrian, sitting
N.Y., This region of cottages between Main Street and the
on a natural pedestal on the face of the cliff. The Indian's
Shore Walk and Cromwell's Cove, is known as the Back Bay, or
Foot is a singular impression, as of a footprint, in a rock near
The Field, and contains over a score of well-known houses. On
the old Conner farmhouse.
the shore is Balance Rock, a huge glacial bowlder, which can
[Out on Ogden's Point, on the south side of Cromwell's Cove,
be stirred by a strong hand. Next to the Grant place appears
is the beautiful villa called Watersmeet, famous for its lawn
the sombre mansion (with stone terrace) of Dr. Hasket Derby,
parties and its cool breezes. It belongs to Mrs. Gouverneur
the celebrated Boston oculist. Then comes the smaller Villa
Morris Ogden, the earliest of the New-York cottagers at Bar
Mare Vista, belonging to the Musgraves, and lately occupied
Harbor, and has lately been rebuilt, and leased for a term of
by Leon Del. Monte, a wealthy Cuban New-Yorker. Beyond
years to Mr. George W. Vanderbilt of New York.
is dark Edgemere, pertaining to the Hon. Thomas B. Musgrave
The cottages south of Ogden's Point are reached only by the
of New York, with the stone tower at the end of its bowling
Schooner-Head road, from which they are far secluded. The
alley almost closing our shore path. Then comes Reef Point,
first is Glen Gordon, pertaining to Gardiner Sherman of New
belonging to F. R. Jones of New York; followed by the noble
York; beyond which comes Old Farm; owned by Charles H.
lawn and long façade of Devilstone, once owned by Mrs. G. P.
:Dorr of Boston, and built of Newport-Mountain stone, at a cost
Bowler, and occupied by the Vanderbilt family. It now belongs
of
$50,000. South of the pretty little cove that makes in here,
to James T. Woodward of New York, who paid $40,000 for it.
on the crest of Sol's Cliff (once owned by Solomon Higgins), is
The lower story is of gray rubble stone, with wide piazzas, rich
the cottage of Miss Lucy Ellis of Boston
lawns, and fragrant pine groves. The next house is Fernierest,
Farther down the shore; near the mouth of Bear Brook, is
belonging to W. F. Cochrane of Yonkers, N.Y., followed by
Chatwold, the. immense and beautiful summer estate of Miss
the handsome mansion of Joshua Montgomery Sears of Boston.
Bowler of Cincinnati, with its walls of red granite and stucco,
Wayman Lane leads from the shore path at this point to the
its round stone towers, carved balconies, dormers, etc., and its
main street of Bar Harbor, passing Crow's Nest, where lived
interior rich in curios from all over the world. It is a quarter
the late Wayman Crow of St. Louis, and near the cottages of
of a mile from the Schooner-Head road, hidden among thick
Professor J. B. Thayer of Harvard, and Mrs. Rodman Rotch
trees.
(Ledge Hollow) of Boston.
Turning now from the south shore to the north shore, we
Beyond the Sears place, on the shore; is the Ledge, the home
may take a pleasant stroll toward Duck Brook. Eden Street
of Professor Lucien Carr of Cambridge; and some ways farther
runs from Mount-Desert Street, near the Malvern; past the
on rises the long façade of Redwood, belonging to Charles J.
cottage of Mrs. E. L. Stanton of Washington, and the retired
Morrill of Boston, and one of W. R. Emerson's finest archi-
home of De Grasse Fox of Philadelphia (both on the left), to
tectural triumphs, with a beautiful lawn and other appropriate
the bridge over Eddy Brook, about which are several shops.
Dictaphone - January 26, 1940.
It was the wonderful beauty of the flowers that
grew so naturally and simply in my mother's garden by
the sea at Oldfarm that, more than aught else, led me
on along the way, step by step and all unconscious of
the greater goal to which it was to lead me, to the
founding of Acadia National Park. I loved the flowers
for their own beauty's sake, but when later I learned
how they had grown in a great northern belt the world
around before man took note of them, but only the birds
and insects that fed upon and cross-fertilized them, I
became interested in experimenting with them and natural-
izing them out along the wild garden lines then rife in
England, and found, though they might come from the great
grassy plains of Northern Asia, they held their own like
natives, given but the sunlight and the soil they needed.
And presently I started a nursery to grow them on some
of the old, admirably suited farm lands that we had in
our Oldfarm property, SO that all might have them at a
price. Thus it was that the Mount Desert Nurseries had
their origin.
George Dorr's Vision for
"Garden Approaches" to
Acadia National Park
Ronald H. Epp
Nearly ninety years ago, the Founder of Acadia National Park,
George Bucknam Dorr (1853-1944), published a plan for developing
"Garden Approaches to the National Monument." This little known
essay is one of several that develop the Acadian plant sanctuary theme
wherein Mr. Dorr argued for permanent exhibits of hardy plants
in the form of "garden walks" extending from the park toward Bar
Harbor. This article will look at two key expressions of Dorr's approach
to gardens as interfaces between natural and cultural habitats: the
gardens at his home and the Wild Gardens of Acadia.
Dorr is well known as a trail builder who laid out pathways to
previously hidden sanctuaries. He established the Jesup Path, the Wild
Garden Path, and the Cadillac Path to connect Bar Harbor to botani-
cally interesting areas. The gardens he envisioned are a blend of nature's
unpredictability and the human desire to impose order. From the time
that he was 25 years of age, Mount Desert Island was Dorr's home,
and the two garden projects considered here were one developmental
element in his complex array of strategies to conserve the matchless
grandeur of the island.
The Gardens at Old Farm
In late 19th-century New England, dependence on the land
for subsistence was still an imperative. However, for the wealthy
who summered on this island, gardens were not designed to meet the
nutritional needs of the household. Instead, statuary, fountains, stone-
work, and water features were incorporated into increasingly elaborate
gardens that symbolized the status of the owner. The garden concepts
of the park founder, however, were rempered and framed by his family
experience in Massachusetts.
Chebacco VI (2004):55-64.
Josiah Royce to Mrs. Charles E. Dorr
North Conway
August 11, 1890
My dear Mrs. Dorr,
I am in a very different landscape now, with shadows
flying over the mountains, a great white cloud hiding the
summit of Mt. Washington, and a wavering sunlight that
alternately brightens and leaves the forests all about us.
We have spoken much here of you, and of the delightful
companionships OF Bar Harbor; and I find Mrs. Merriman
one with me in the desire to let you know what warm
affection we feel for you, for the forethought that
plans and the tireless devotion that SO fully watches
over the good times that you offer your friends at Old-
farm. As I have, for my own part, so much needed the rest
and the companionships that I have enjoyed under your roof,
SO I have profited by them far more than I could express
to you while I was there, or than I can even now write
down on paper. Everything with you, amidst all the
variety, tends to spiritual strength and health, and all
the coming year through the memory of the hills and the
waves and the conversations and the kindness will EO with
me and cheer me. I thank you once more for it all.
1
(August 11, 1890)
2.
I shan't forget your paper. It will be a poor offering,
but I will try to make it in an earnest spirit. I learn
so much from you and at your house that I should indeed
do ill if I did not try to put on paper some of the
thoughts that have come to me as I have listened and
talked amongst your friends.
Remember me kindly to Mr. Dorr and to George, with
love, and also to all of our company who are still with
you. The invitation for September is very fascinating,
but I must devote myself to my books in Cambridge after
this week, and one can't carry 2. library about with him.
Yours affectionately,
Josiah Royce.
BEATRIX FARRAND VISITS OLDFARM
Source: Beatrix Farrand, "Book of Gardening, 1893-1895," Environmental Design Library,
University of California, Berkeley. Beatrix Farrand Collection. Handwritten journal entry.
October 12. [1893]
I tried to get a Kodak of grouping of shrubs in front of Oldfarm. Two small round lilac bushes on
2
either side of the front door, an arbor-vitae standing back in a corner made by the L, backed by
two or three large white spruces. A large lilac by the kitchen [illegible], and a pyris jap. On the
3,4,
5
right of the approach. Two magnolias out of key but a good Pinius mughs very effective. The
6,7
epiraeas at the entrance to the garden are very effective and have grown well. I. callosa was very
striking in spring and early summer with its red young shoots. I Douglasi does not seem as yet to
be a great improvement on the common steeple bush (V. tomentosa)/ I Van Houttic very graceful
Spirace a tomentosa
with an adicentiens-like (sic) like leaf, I. crategifolia looked a bit moth eaten, while I. robasta
(sic) was carrying out its name well I. ulifolia was thrifty and seems to be the common door-
yard kind about here, I. theonbergi (?) had grown enormously and was very pretty [with] its
feathery plumage. I callosa and I. thumbergii are of a yellow green than the other kinds
mentioned.
In the garden itself I learned thayt Eulalia gracilliseima had wintered perfectly without the
slightest covering. The perennial Helianthus had gone, it has been extremely handsome about
seven feet high a mass of bloom of about the size of a large black-eyed susan. What var.?
2.
The hollyhocks, and before them, the larkspur have been very good against a solid background
of arbor vitae hedge. Aralia spinosa is very useful during the summer, perfectly hardy & blooms
in large numbers at the top of the [illegible] at a height of 10-15 feet; and in the autumn the
foliage turns a deep maroon and the leaves fall early. I. sigrinum splendens is in full flower, the
stalks about four ft. in height; also I. speciceum (sic) albura praecox, very handsome, and the
latest aurcetumns in full bloom in the rhododendrum bed. Lolida semiperviens(sic) grown from
seed started last winter is now magnificent; although planting from 1 ft. to 15 inc. apart is
crowding too much. Aster novae angelicae is also in full glory and seems to improve vastly
under care. The exposure is south west and very warm. Aster ericoides is vey lovely too being in
full flower and height. I. semipervisens 2 to 4 ft. A. iovae angelicae, 18 ins. To 3 1/2 ft. A.
encoidei 18 ins. To 3 ft. A beautiful aster grows about 2 1/2 feet high at itys best, has palest mauve
rays and reddy disk flowers, heads very full, and flowers about 1 1/2 to 2 inches across very
desirable var (?).
Spiraea sorbiflora has lost all its leaves and is most unsightly. The Lea Buckthorn botanical name
not known(?). Salicefolia is a good shrub and the foliage is still bright and pretty, and it has tree
like habit, the leaves are a gray green beneath and the twigs are grayish. The Deutzia pride of
Rochester seemed to be doing very well, and combined with the finer leaved weigelia (sic) said
to be effective. The columbines are never unsightly as they leave a tuft of green leaves after the
flower stalks wither. Cleome pongeus has been very striking in the garden this summer, having a
five-fingered leaf and throwing its bunch of butterfly-like pink mauve flowers (an idea like
honeysuckle) about four feet high. The scarlet trumpet honeysuckle over vthe porch has small
3
bunches of scarlet berries all over it, which make it as effective as in the blooming season. Am
much disappointed in Viburnum opulces, the berries hardly made up for the leafless stalks and
generally the worse for wear look of the leaves. There was a very handsome Verbinum in the
Oldfarm garden, however, a compact shrub about four feet in height with lead blue berries,
glossy foliage which was much indented in wavy lines, that is not sharply serrated. Could it have
been V. dentatum?
Comus sanglcenae has just been planted out this year, and is growing well, the question is
whether it will be hardy? Lymphoricapus vulgaris is now very pretty, a graceful habit in a shrub
2 feet high on October 15th Noticed the col,oring of the leaves more beautiful than before this
season before we left, day before yesterday, went to Oldfarm, where there was a perfect
composition. The prominent objects in the immediate foreground were a paper birch and a white
spruce. The birch had had turned deep gold and against the whoite spruce was a beautiful piece
of coloring. The trees along the Oldfarm waterfront are quite tall SO that one cannot see their
coastline. This seems to give the effect of quite a big drop, that is, it looks as though the trees
were on top of a cliff, and SO gives the hill on which the house stands more height. The middle
distance is the blue water with, on the left, Pointe d'Acadie, & on the right Round Porcupine,
with its black cliffs. This is on to the three next Porcupines, & on the horizon lie the Gouldsboro
hills. The view is not seen all at once, and the lines of the foregrounb are as irregular as those of
the hills in the distance. Looked at the B.H.V. I nursery, all the shrubs look well with the
exception of Rhus cotenies (sic?), which although a handsome small shrub 2-3 ft. bears the
marks of severe winter killing..
4.
[Farrand's inventory of plants ordered follows].
The next day I noticed a good arrangement of trees on a hillside. [What follows appears not to
refer to the Oldfarm property].
Transcribed draft. Copy generously provided byMartha Harmon. Librarian at Garland Farm, Bar
Harbor. Plant scientific names require further research.
September 7, 2011
Ronald H. Epp, Ph.D.
532 Sassafras Drive
Lebanon, PA 17042
717-272-0801
10f2
James & Royce re Bar Harbor Notes
7/27/72 Wm. In B.H. for more than two weeks. Pp. 425-8 Corr. Wm. James In Vol. 4 he writes to sister
Alice of his first -largely - impressions entering Bar Harbor by sea. Impressed by the island and mainland
hills, but where "society here is abundant and excellent, "I suppose few watering places[s] present such
an intellectual front to the sweather." too many social acquaintances. 'wagon excursions to different
cliffs and hilltops, and rowing and sailing are the amusements here and when a day here is fine, it
is
resplendent. The finest skies I have seen in America." More detail here than elsewhere in the james
correspondence. Describes "The fresh wind, the interminable spotless twilight, the dark heaving ocean,
the solemn might of the cliffs on our left hand, the incipient northern light which later became one of
the finest I have ever seen, all made a first class night of it." However, in a letter to Alice (9/17/94) says
he may not go to MDI because too much talk there will do him "no good at all."
- twelve day visit with Dorrs WJ & AJ.
7/29/90 - WJ to AJ, Royce will return to Dorrs in 10 days
8/16/96 - Cambridge, has been ill with GI issues. Wants to go to Bar Harbor for he needs wilderness, but
changes mind and went to the Adirondacks with Harry for a restorative vacation.
8/11/97 writes to Ellen Gertrude from Oldfarm, described as a "really grand place." Off to Intervale by
the 15th. Writes to Alice that he spent a.m. working on Immortality lecture wqith Hodgson but and when
he departs on the 13th he thanks MGWD for as jolly a three days "as he has ever passed," bragging to
Alice about the vitality he found at the Dorrs. Heads for Mt. washinton enroute to Chocorua, then onto
Keene Valley, walking to improve his constitution je says to brother Henry. 8/30/97.
8/30/97 spent 4 days alone at the Dorrs.
TO Alkice James- - 6/27/1904 wants GBD to be one of his pallbearers aftrer attending Sarah Whitman's
funeral. Where GBD was one of ushers.
12/5/08 WJ came to BH to investigate movement of a table without contact, reported by GBD.
WJ repeatedly sought relief from anxiety through travel. Hiking mountains hefre hope and abroad
See 1917 letter from Tom Ward re preservation, a letter not from WJ but a lifelong friend. Who was also
on the Hafrvard Phil Dept. Visiting Committee.
and Doris interes Vin the experients elusus character
claim of innie life worked after Jonesideath
Dop.a the James my have advenced
for day the past derable his
the wildnes t Nature le pressed - in Dain,
202
New llanin 1 but
he made us cap touit at texts about SHE
threat to the davise or th red to protect it.
This wa GB tash. Peings la the
Procell actuary that took please at Have,
WS'S forces was 104 on intenal issues
Whereas the of 6BD bad alread
brown external in focus.
OR, do I wish to 5g. The impacts of the consecuation
writing: of Chanks Shot ad the preveiples attectated in 4c
HeTPR, prooded new urgang.
BAR HARBOR Town OFFICE
1873
CHAS Dore
81 ALRES CROMOUEN HARBOR
800 The
1901 INVENTORY & VALUATION
ALRES
TAX
DORR GEO. B. No. PORTION OF COT FORMERLY ouner BY 27
398x25
JOHN CORRORS
1200
COTTACE ON SAME
1500
STABLE is
4
500
FARM HOUSE
-
a
200
SURNS
LT
200
DOUGLASS
6.1
5
100
ICE HOUSE
"
100
"
LAUNDRY
25
SHED
7
-
75
BOAT HOUSE
c.
c
500
GREENHOUSE & COTTACE
2500
NEW 4
4
100
NEW STABLE
400
COLD STORAGE BLOG
50, PORTION OF LOT FORMERLY. OUXED BY John
CORRORS INCLUDING GRANITE Gutray
114
5415
Guaney BLOGS. on SAME
200
LOT LYING BETWEEN OTTER CREEK t HEAD 5 1200
ROADS
LOT BOUNDED NORTH sy OTTER (REDE ROAD NE SE
x su BY LAND OF SELF
2 200
LOT BOUGHT OF w. M. ROBERTS BOLIDED NW
By OTTER CREEK Rs. NW sy LAND on
SELF SE BY SUTTONER HEAD Ro., SW BY 6 8/10 340
CANOOF W, m. ROBERTS RELORDED iNH.R.
OF O. VOL. 28607
HOUSE ON NEWPORT MT. ROAD
250
BLOG ON MAINST. BETWEEN BUNKER BLOCK x STEPENS
LAND ON LAND OF T.C. ROBERTS
1000
STABLE ON LAST DESCRIBED LOT
100
66730
MONEY AT INTEREST
CARRIACES
in EXCESS OF DEBIS
10 500
Cows
HORSES
5000
2 50
8 400
MUSICAL INSTRUMENTS
HOUSEHOLD
IN EXCESS OF 415
in EXCESS of
TOTAL VALUANA
TO TAC
/ 150
$200
OF PERSONAL ESTATE
500
1600
68380
Josiah Royce to Mrs. Charles H. Dorr
Cambridge
August 11, 1894
Dear Mrs. Dorr,
I reached home, after a very long and refreshing
sleep, in good time this morning. I am in every way
better for the few delightful days at Oldfarm, where
beauty of so many sorts, outer and inner, combines to
make one meditative, happy and free of soul. You can-
not tell how much good you have done me, and I am sorry
that it is so poor a return that I can make. I plan
now, under the inspiration of your counsel, to make my
study of Eckhart fuller and deeper, and to enlarge as
well as improve my paper before I publish it, when, as
I warmly hope, you will find it worthier of your kind
interest than it has been in its present hastily wrought
form.
I write just before going on to Plymouth. Thank you
again many times for the profit and pleasure of this visit.
Give my affectionate greetings to George, and my thanks
for all his care of me, too, and believe me
Yours very truly,
Josiah Royce.
Josiah Royce to Mrs. Charles H. Dorr
Cambridge
Sept. 20, 1896
Dear Mrs. Dorr,
With a feeling of great refreshment, as of one
who has seen and shared a new experience of life,
The boys have been much stirred up over George's
two gifts, and think that your island must be a very
wonderful place, about which they now wish to ask many
questions. I answer as I can, feeling unable to tell
them where the real wonder of the place lies, but hoping
that they may some day know friendship as kind and in-
spiring as yours has been to me.
My love to George, and my special and repeated thanks
for your goodness.
Yours very truly,
Josiah Royce.
File 2 oldfarm
Memo: "The Oldfarm Series"
Date:
9 March 2014
Scribe: Ronald Epp
Psychologist William James published many papers on psychical research prior to his death in
1910. Of the many spiritualists and mediums that he encountered, Mrs. Leonora Piper intrigued
him more than the others. George B. Dorr was allied with James in these investigations for more
than two decades, both intent upon demonstrating the accuracy or inaccuracies of efforts to
communicate with the deceased.
On June 5, 1906, nearly five years after the death of Dorr's mother, Mary Gray Ward Dorr, Dorr
questioned a medium at Oldfarm who claimed to a "control" or intermediary to Australian
physician Richard Hodgson, deceased but a few months. Hodgson had been one of the foremost
psychic researchers and was very familiar with Oldfarm and the Dorr family. George Dorr then
tests the unnamed medium and in the process previously unknown aspects of life at Oldfarm are
laid bare that will not be touched upon in Dorr's memoirs. Dorr adds his own comments to the
published exchanged, inserted in brackets, which can be taken as historically accurate in part
because they would have been reviewed and discussed later with William James. All quotes are
those entered by G.B. Dorr.
We had "a big buckboard that carried six people and was the only wagon which we had big
enough to take all the people up [to town] the people used to go off from the kitchen, which is
at an end of the house and cannot be seen from the living rooms or piazzas
"
6699
the piazza itself, which in not a conspicuous object in the house from without, and which
was only familiar to my mother's more intimate friends, is not a thing which would occur
naturally to anyone not familiar with our life
"
"The [living]] room is one in which, the fireplace, broad and arching, is the central figure and
would be first thought of in thinking of the room."
[Storm Beach Cottage] "was across the lawn and garden upon a hillside opposite the house. We
always kept some rooms in it for our guests, overflowing into it when the house was full."
"We use to take long walks over the mountains and go down for a plunge when we returned from
them. There were often three or more men or more going in it together when the house was
full My bath-house was not on the beach, but on a point running far out into the sea, very bold
and rocky, and we use to spring off the rocks into deep water, climbing out by a perpendicular
ladder fastened to the ledge."
On July 6, 1906 the inquiry resumes:
2,
"My mother use to have pansies spread loosely over the tablecloth when she had people to dine
or sup with us at Bar Harbor, where we had a large bed of them planted near the house SO we
could get them freely for this purpose.
"
"A dozen years ago I made a bicycle-road on my own backland, which ran through the woods
beneath a mountain over which we often used to walk. It was a pleasant and familiar feature of
our summer life there."
"[Minna Timmins Chapman} used to smoke cigarettes occasionally and was the only person of
the feminine sex whom I now recall as having done SO at our house."
"I used to carry a little canvas bag slung over my shoulder and a cup in it, when we went on long
tramps. "
Source: William James on Psychical Research. Compiled and Edited by Gardner Murphy M.D.
and Robert O. Ballou (New York: Viking Press, 1960. Re-issued by Augustus M. Kelley,
Clifton NJ, 1973). Pp. 150-158.
To the west of Jorr Point, there was a flat
stretch of rock large enough for a salt-water bathing
pool and at a level so much below the Point that salt
water from the harbor flooded over it at high tide.
This space was, at a Guess, some forty or fifty feet,
ending toward the harbor against a somewhat higher rock
of lava character, with surface of deep red, from which,
at one time, I extended as a pier a float for my sailing
boat. The lower stretch of level rock, between this and
the Point, I walled about with granite blocks from my
quarry, leaving certain open spaces between the blocks
for the tidal water to flow in and out. When the tide
was out the water that had come in, filling the basin
below these inflow spaces, leached away through the
rock and I planned some day to cover the lower portion
of the basin with a thin layer of cement that would
hold the water in, letting it warr with the air and sun.
This should be done now under the Government's new owner-
shin. The cost would be but relatively slight and it
would become a most attractive feature of the Point.
2.
Opposite the Pool, a short distance across the
Point, there is a smooth level rock of loval character,
rising near the level of high tide, fronting the sea
and descending vertically into it at considerable denth.
It made a splendid place for a deep plunge when the tile
was right and running down from the house before T
dressed in the morning I useu to plunge in for a
Clorious swim. But, the swir over, it was difficult
to climb out, and to meet this I had rungs of thick
iron pipe driven into the vertical face of the rock
far enough Town to make it possible to climb out at
any tide and had thereafter great joy for years in my
plunge.
This will make 3. splendid contrast to the
sun-warmed, sheltered water in the pool for those hardy
enough to brave the cold sea-water and take the plunge.
This, too, along with the pool, should be maintained.
This Point, which I have named for my father, its
summer-resident owner, Dorr Point, is throughout of a
most picturesque and interesting character, owing to
the hard, resistant character of the laval rock. In
storms, the surf, sweeping in from the outer bay, breaks
magnificently, sending un great sheets of spray.
S.
the Point there is 3 beach of truo
sand, the only one on the whole shore, and from it
before we came into possession they used for chinneys
and the like such small amount of sand as was needed.
Come of this sand still remains, rolled u.) above the
shore. Co this same sheltered beach the light-toencr
Pro 200 Roots useu to row when the sea was still and
beach his boat while lie procedued on to the village
for supplies.
380 Rock, the eastern end of a mile-long granite
resf that fronts the open sea across the broad, un-
sheltered entrance to Frenchmans Bay, rises up soli-
tarily some forty-odd feet above high-tide level;
and against it stores, sweeping in from the east,
break at times with terrific force. On one such
occasion, I remember the lighthouse keeper to have
told me, great seas swept over the whole Rock and
bettered in the strong oaken door with its iron bars
and flooded with salt water the well in which fresh
water for the keeper and his family was always kept.
the Whole structure quivered with the jar but held
firm. this Isuze on which the lighthouse stands was
a great place in early days for sea birds to breed
hence its name.
THE DOWNEAST DILETTANTE: MONEY USED TO GO FURTHER, # 3: Bar Harbo Page 1 of 34
Share 0 More Next Blog
Create Blog Sign In
THE DOWNEAST
DILETTANTE
Tales & Opinions From Maine Regarding Architecture, Art, Books, Design, Lan
23.2.11
MONEY USED TO GO FURTHER, # 3: Bar Harbor Property Taxes 1903
In the course of researching a story about the Vanderbilts in Gilded Age Bar Harbor for today's New Y
Diary, I came upon this little tidbit in the July 3rd, 1903 New York Times. Here in down east Maine, li
is when the annual Town Reports are released, and absolutely everyone indulges in the voyeuristic spor
how much their neighbors paid in property taxes in the preceding year. Apparently it has been ever thus
BAR HARBOR TAX LIST.
George W. Vanderbit of New York
Assessed nt Highest Figure.
Special to The New York Times.
http://thedowneastdilettante.blogspot.com/2011/02/money-used-to-further-3-bar-harbor.h... 10/31/2013
Wednesday evening Cyl 1
Note to get the proposed property lines and the sewage
and cistern line drawn for the properties on the shore.
And to get line against the Phelps property drawn out
on paper from road to shore with the restrictions against
building and for tall trees on the property obtained from
David Ogden shown also throughout , from Main street to the
shore. The pipe line against the Phelps line to its outflow
or: the shore needs also to be shown.
The land I own on the Otter Creek road beyond the
Gorge upon the west , descending from the Otter Creek Road
crossing the Brook and there extending to the woods nor thward
needs also to be surveyed and shown. This whole property
should be thoroughly studied, its possibilities looked into
and the access to it studied.
The spring on the Parkland
where the old
loggers lived should be looked into also for its possibilities.
This property is interesting and unless right arrangements
can be made for it, it should he held and not given away.
The tax upon at the present date cannot be but very light.
A good ground survey not only of bounds but of woods and
levels would help also. The footpaths and old woodroads as
developed on the Park land north of it should not be opened
hence
through by land as at present owned and tickexnot used at all.
for riding or driving. This is to be watched out for and
strictly held to.
THE DOWNEAST DILETTANTE: MONEY USED TO GO FURTHER, # 3: Bar Harbo Page 2 of 34
BAR HARBOR. Me., July 2.-In the tax
list which the Assessors of Bar Harbor
have just completed the highest tax as-
sessed against any Individual or corporation
is that against George W. Vanderbilt of
New York. Mr. Vanderbit pays to this
village each year $3,200 for the three cot-
tages which he has built along the shore on
the Cromwell's Harbor Road, and one of
which is this year occupied by L. z. Leiter
of Washington
or the 250 cottage owners who come here
in Summer. 123 pay more than $200 in
taxes, while many of them pay near or
over $1,000. George B, Dorr ranks next to
Mr. Vanderbilt. paying $2,390. A. C. Gurnee
of New Yerk, who owns one of the most
beautiful cottages here, pays $1,369. Charles
T. How, one of the pioneer cottagers from
New York, contributes $1,263.90, while
George S. Bowdoin, one of J. Pierpont Mor-
gan's partners, is taxed $980. John S. Ken-
nedy of New York Is taxed $2,280 on his
cottage, Kenarden Lodge, and its surround-
ings. Joseph Pulitzer pays $2,198 for his
property down on the ocean drive. John J.
Emery is down on the list for $1,375. Ed-
gar T. Scott of Philadelphia heads the
Quakers with a tax of $2,451. while Con-
gressman Morrell of Philadelphia pays
$1,046 and Charles Allen Porter of that
place $1,135. Robert P. Bowler of Philadel-
phia contributes $1.175 and President Cas-
satt of the Pennsylvania Railroad pays
SCOO J. Montgomery Sears of Boston pays
$1,200,
Naturally, I found this entertaining, and since I had far more important things to do, I decided to match those
long ago taxpayers to their houses instead.
Tax assessing has always been something of a mystery to this Dilettante, and this list was no exception.
several of the grandest estates in Bar Harbor, and left out several others. Four of the cottages, Vanderbilt,
Dorr
Kennedy and Morrell, sat on properties of 20-35 acres, and had many support structures---gatehouses,
cottages, greenhouses, stables and carriage houses. Most, as is typical in many resorts, sat on smallish
acres, with perhaps a carriage house or lodge.
http://thedowneastdilettante.blogspot.com/2011/02/money-used-to-further-3-bar-harbor.h.. 10/31/2013
DOWNEAST DILETTANTE: MONEY USED TO GO FURTHER, # 3: Bar Harbo. Page 3 of 34
Pointe d'Acadie, the main house on the George Vanderbilt estate.
'Islecote House' at 'Pointe d'Acadie', the cottage occupied by Mr. Vanderbilt's niece, Mrs. William Jay Schieffelin, desig
Alexander Wadsworth Longfellow, nephew of the poet.
A rights-free image could not be found of 'Whileaway', also designed by Longfellow, the third main cottage at George Vanderbi
d'Acadie'
Total Tax Bill 1903: $3,200.
edowneastdilettante.blogspot.com/2011/02/money-used-to-further-3-bar-harbor.h. 10/31/2013
THE DOWNEAST DILETTANIE: MONEY USED TO GO FURTHER, # 3: Bar Harbo... Page 4 of 34
The main house at George B. Dorr's 'Old Farm' off Schooner Head Road, designed by Henry Richards (click HERE to see t
2014
the left today)
Tax Bill in 1903, $2,390
in
62,014
Augustus C. Gurnee's 'Beaudesert' on Eden St., designed by William Ralph Emerson
Tax Bill in 1903, $1,369
http://thedowneastdilettante.blogspot.com/2011/02/money-used-to-further-3-bar-harbor.h.
10/31/2013
118750
march, 1921 Houseandgarden 32 Pr
23
SOME GARDENS A T BAR HARBOR
Where the Climate and Soil of the Maine Coast Make Possible a l'ariety and Perfection of
Flower Growth that Can Hardly Be Rivalled Elsewhere
MERVIN JAMES CURL
T
HE thing that kept Diocletian down
eight and even nine feet. Unfortunately for
Mrs. George Vanderbitt of New York City.
was his lack of travel. Could he have
the emperor, no regular line of steamships was
or these the senior Olmsted designed the Van-
sailed around the matchless rock head-
running to Mount Desert in his time: but for
derbilt gardens: Mr. James 1.. Greenleaf, the
lands of Mount Desert, Maine, and landed
such gardens as Bar Harbor can show. well
Blair garden: Mrs. Farrand, her own and those
and strolled through Bar Harbor, his cabbages
might he have abdicated a throne.
of Mr. Satterlee, Mr. Young and Mrs. Scott;
would have suffered, but how the man would
Among the well known gardens are those of
Mr. Herbert Jaques and Mr. Joseph Curtis,
have gained For it is not possible to be de-
Herbert L. Satterlee, Murray Young. and Mrs.
the Bowen garden.
voted exclusively to cabbages when you can
John S. Kennedy of New York City: Mrs.
Well might the finest designers spend their
walk through your garden in the cool of the
Edgar Scott, Mrs. John Markoe, and Miss
efforts here, because floriculturists de "lare that
evening and observe your foxgloves rising six
Coles of Philadelphia; Mrs. Farrand of New
the climate of Mount Desert is the finest along
feet and more high, your larkspurs attaining
Haven; Mrs. J. T. Bowen of Chicago, and
our eastern coast for the growing of flowers.
The Bar Harbor region is Q land of wooded hills and blue water,
everywhere. From here. on the summit of the Beehive, one
of jar-reaching views and the romantic wildness of a North that
looks down upon the Satterier estate with its gardens and bungs-
smone the trees. Great Head lies beyond
House & Garden
24
Whatever the reasonable
demand of the gardener
may be, here is his satis-
faction. If he ask for
health and vigor of
growth, for brilliance of
color, for a reasonably
long season and a large
variety, here he will find
what he asks for. And
if he should request a
romantic setting, a gar-
den that is a very part
of the sun and the air
and the soil of this 10-
mantic northern island,
he will find no denial.
There is a reason for
this perfection of gar-
dens. Where wild flowers
grow in profusion and
strength, there will a
well-watched g arden
thrive. Mount Desert is
the very home of wild
flowers. Professor M.L.
Fernald, of Harvard
University, wrote after
twenty-five years of in-
vestigation, "This ex-
traordinary accumulation
within oue small area of
the typical plants of the
arctic realm, of the Ca-
The regular planting of the
nadian zone, and in
Murray Young garden, its bright
colors set off by the dark spruces
many cases of the south-
and pines, softens to informality
ern coastal plain, cannot
along a lose stone wall. The
be duplicated at any
crests of Flying Squadron and
Champlain mark the skyline
point known to the
writer."
These wild plants of
various latitudes, which find their home on
Mount Desert, are always sure of cool nights.
However hot the day may have been, after the
sun sets the cool air sweeps in from the sea
over the island, the dew is heavy, and the
plants are refreshed. So they are never weak
or puny. Plentiful moisture comes in again
by day from the sea. The heavily wooded
reaches of spruce, pine and hemlock aid by
retaining much moisture in the soil. When
cultivated, the wild flowers attain much greater
size, like the Solomon's seal of the Farrand
When wild flowers, like the meadow
The charm of different levels is
rue in the Farrand garden, are
evident in the garden of Mrs. John
transplanted with rure they attain
S. Kennedy, Three old millstones
wonderful size and projusion of
have been set in as steps, flanked
bloom, A gainst the dark green of
by a low retaining wall with gera-
the forest wall they show to pey-
niums bedded at its base. Here, as
fection. Mrs. Farrand herself de-
in other Bar Harbor gardens, trees
signed the garden scheme
form the background
25
garden, which is as at-
tractive as if imported
from distant lands. To
this felicitous climate is
added a kindly soil of
powdered granite, shale
and slate with plentiful
humus from the falling
leaves of succeeding au-
tumns.
And the result: note
the meadow rue in the
Farrand garden, which
rises a good two feet
above the gardener's
head; note the bluebells
reaching almost to his
shoulder, considerably
over four feet; note in
the Kennedy garden the
larkspurs along the wall,
about nine feet high.
Everywhere a growth that
would be rare in other
gardens is in these the
normal thing. Not only
size, which is a good but
not exclusive virtue; the
number of flowers to
each plant is here much
larger than usual, The
great pools of bloom in
the Scott garden are not
the result of many and
large plants only, but
Mrs. Scott's garden has all the
also of the vigor of the
charma in its wall of complete of birches seclusion and spruce with-
individual plant. A
lawns, well the colors fine of amplitude the flowers. of
CS as d
noted gurdener has re-
and the friendly gables of the
marked that in Bar Har-
house showing above the trees
bor plants thrive, where-
as often in more southern
gardens they merely grow. Surely he is right.
But even the most brilliant, most sumptu-
ous blooms fail of their full effect when set
in the midst of a naked waste. A background,
a frame, a setting must be had, else something
is lost. Mount Desert gardens always have
this setting. The red spruce, which here
reaches well toward its southern seaside limit,
rears its almost black branches in great pro-
fusion. Against such a black-green rampart
wall veiling the romance of the garden, the
(Continuedon page 70)
Where the little stone bird back,
The planting among the rocks that
the bluebells, the meadow THE and
circle the Sieur de Mont's spring
other pleasant lesser place plants intimacy form against a
write to
is of mattuc grasses and Howers
of
like thoroughwort and hardback, a
the evergreens that surround the
scheme of simplicity and great
Farrand garden. Here bird life
centers about the constant lure of
is apparent
charm. The in spirit all the of the surround- North
water and seclusion
ings
70
HOUSE & Garden
La France Giant
Simple Surgery in the Orchard
(Continued from page 68)
Everbearing
of connection of the scion with trunk will be no undue strain on these living
OF
and limb. Also cover the wounds of
bridges.
RedRaspberry
the limb where it split from the parent
Often the lower limbs of a tree are
tree. Grafting wax should be used free- sickly or weak. In this case, suckers
ly
so that all moisture may be kept out may be used as scions. If suckers do
of the crotch of the tree, If the scions not develop at the base of the tree-
BIG JUICY SWEET BERRIES
are now left exposed to the weather, and they should not if the tree is planted
they frequently dry out. Therefore it properly-one may remove from 2"
FROM JULY TO NOVEMBER
is advisable to wrap burlap or some to 4" of soil from the base of the
tree
other material around them to protect 50 that the air and light can reach the
them from the direct rays of the sun wild stock into which
the
desired
va-
and the drying winds. It is to the ad- riety has been grafted. In this way
G
ROWN in the gardens of J. P.
vantage of the tree to leave this pro- suckers frequently appear. After one or
tective covering on for at least a year. two years' growth, cut out all buds and
Morgan, Glen Cove, N. Y.;
The tree should be wrapped with great cut the tips of the suckerswedge-shaped.
John D. Rockefeller, Pocantico Hills,
care and stakes driven around it so that Insert these tips into incisions made in
N. Y.: P. S. du Pont. Wilmington, Del.: Chas. M.
the scions will not be disturbed.
the sickly or weak limbs and cover the
Schwab, Loretto, Pa.: James J. Hill Estate, Lake Geneva,
The following spring the scions will wounds with wax. Frequently the
have made the proper connections and suckers are bound with tape to hold
Wis. Henry Ford. Dearborn, Mich. and others who de-
the covering may be removed. In a few them in position. This operation should
mand the world's best.
years the scions expand and not only be performed early in the spring, about
The La France Red Raspberry is perfectly hardy. It
supply the necessary sap to the broken one week before the buds start. The
limb, but completely heal the wound. suckers will grow vigorously and supply
has been carefully tested for years, to absolutely prove
All fruit should be kept from the broken an extra supply of sap to the sickly
its merit.
limb for at least two years so that there limbs as well as form natural braces.
Fruits early in July. the first sea-
son planted, and continues in fruit
until frozen. Free
Some Gardens at Bar Harbor
from insects and
disease. A dozen
(Continued from page 25)
plants will sup-
gardener can secure his delight. The Mont's Spring. in the Lafayette National
ply the average
white of meadow rue, the red and the Park, near Bar Harbor, for a moment
family all sea-
blue of other flowers make their most there sweeps over him the delusion that
son. year after
eloquent gestures against the evergreens. here is Italy, but he is quickly recalled
Nothing of effect is lost when such a to his northern surroundings. The
ef-
year. Plants
screen stands behind the flowers.
fect is more truly that of the Scottish
multiply rapidly.
Best of all, the wall has exquisite coast. The gardeners have therefore
BRI
The bushes
texture of its own. Upon the spruces obeyed, most often. the demands of
a
grow rapidly.
and cedars around the Murray Young strong landscape, and have conformed.
garden, for example, the light falls in
Some of the gardens, being on the
and are covered
dark or in light masses where twig tips edge of the rocky seashore, make
no
with firm. lusci-
spread it in silver gleams or recesses attempt to wrench the coastline into
ous. wonderfully
of branches dye it black. The wall new forms, but adapt their own to what
@@@@@@@
flavored berries, with few
thus is significantly beautiful itself.
they find. In the same way the gar-
This general character of the natural dens do not contend with the walls
of
seeds, from July until
setting has deeply affected the style of trees which are ready to make the frame,
freezing weather. The
the gardens. One who stands on any but conform to the winding edges that
August
fruit is twice the size of
of the mountain peaks and sweeps the the trees allow. By so doing they often
1821
other raspberries and of
surface of the island with his eye sees gain in winning charm. The fine free-
at
the same delicious flavor
123436
once how shaggy, how romantic, how dom when plants creep
snugly
into
all
wild it is. Thus the view of the Sat- the little recesses among the
trees
but
from first to last. Im-
terlee bungalow and its surrounding give way for the thrusting growth
mense branches covered
forest.
wherever it serves, makes a perfect
A288362
with berries are constant-
Though some gardens are here wholly transition from garden to natural
ARAB
formal, and others have sections of growth and unites the whole landscape
ly ripening.
formal planting and architecture, the into a complete composition.
It is the best for home gardens
general tenor is informal. As a famous To the gardener's aid in this finely
and a great money maker for
1031
gardener has remarked, it is impossible informal work comes the chance for
marketing.
to make this northern island look like paths and stone work from the granite
Awarded medals and certifi-
Italy though one spent a million dollars that the island so richly holds. A step
cates by leading Agricultural and
a
year. It simply won't be made into from the porch leads into the lawn.
Horticultural Societies, including
what it is not. When one spies the ex- The eye catches the light from the gray
the Massachusetts Horticultural
quisite spring house of the Sieur de
(Continued on page 72)
******
Society, Horticultural Society of
New York, The American Insti-
tute of New York, etc., etc. It
October
1921
pays to buy the best.
Strong, field grown, bearing
plants $1.50 each, $16.00 per
dozen, by prepaid parcel post.
Safe delivery guaranteed in proper
time for planting if ordered new, Cir.
********
culars on request.
November
John D. Scheepers
1901
Isc.
522 Fifth
Avenue
cor. 44th St.
New York
N.Y.
Rx spberry
F $
a Sound
Beach
UP
Conn., and
Glen Head.
The garden path must invite the feel if it is to be a
N. Y.
real success. Along this path of stepping stones in the
Farrand garden the landscape designer and the stroller
alike realise their dreams
Digitized by
Google
Original from
UNIVERSITY OF MICHIGAN
Garden
Carters Tested Seeds
Famous for a Century
Evidence of the success met by flowers under cultivation at
Bar Harbor is given by these plants of native Solomon's
seal which are jur larger than others growing in the wild state
Some Gardens at Bar Harbor
(Continued from page 70)
"They Come up Smiling"
stepping stones as in the Farrand gar- invitation in the Murray Young garden
den that beckon off into the delights of to raise the eyes to the crests of the
flowers. When stepping stones are not mountains that loom above the spruces.
desired, when the wish is rather for In other gardens the eyes gaze down
TRADE MARK
grass walks, the gardener is equally long alleys where the roses shine,
fortunate, because the cool nights and sometimes past them and out to sea,
the sea mellowness make turf such as sometimes into the heart of the woods,
Are the product of generations of
may well be his pride. With incidents sometimes to a gleaming pool at the
such as stone seats or bird baths in end. For many people this intimacy
careful selection, scientific propa-
order, the granite awaits its use. The with the woods and the sea is priceless.
beauty of this work is that around and The rocks of the northern and the
gation and testing for Germina-
behind and beneath the seats native castern shores are high and rugged. Be-
ferns will thrive, making the fine com- low them the sea churns and sobs or
tion, Purity and Vitality. This
bination of strength and solidity and roars and pounds. Through gaps one
assures a certainty of results not
lacey delicacy that New England can catches the blue-green waters of French-
so well boast. The bird bath of the man's Bay or the Atlantic. Now and
possible with seeds of less definite
Farrand garden, sunk in the ground, then a stately white sail moves among
appears to be of primordial age. Be- the islands. The tang of salt is in the
parentage.
tween it and its surroundings there is air. Romance stirs the pulse and whisks
no quarrel.
the beholder away to the land of heart's
For better vegetables-for fine and FREE
In some ways the finest thing about desire, the perfect land of flowers and
these gardens is their vistas. Note the of dreams.
flowering plants, sow
CARTERS TESTED SEEDS
How To Make Livable Rooms of Green
They cost no more than the ordinary
(Continued from page 32)
kind, and results considered, are the most
economical and profitable to use.
nignly accepting these tributes up- momentarily caught by the sun; a tone
lifted to its pale glory. So, too, might that is beautiful in Nature because of
Carters Tested Grass Seed sold in one and
the green room be.
its rarity and briefness, but which
is
But leading to the accomplishment of deadly spread all over a floor in a bril-
five pound packages. Used in producing
any miracle there is a slow path of liant fixed stare. By and by the floor
quality turf on the foremost Golf Courses
patient plodding: the honest study and permitted one to glance painfully at the
experiment of effects, the wielding of rest of the arror: the rich cream walls
of America and England.
transforming paint brushes, the prick- nearly bilious in color. at the windows
ing of the needle as the thread of the long floor-length curtains of moss-
Price 55c per pound
flaming amber wool slides vividly be- green velours, the
fatly
overstuffed
tween its fellows of green; there is the chairs resembling the stream-bank in
contemplation of texture and its effect color texture and form,-rolling, bland,
By the Bushel (25 lbs.) $8.50
in this color; the importance of the mass-covered. And yet the pride of
decorative breaking up of surfaces, the possession kept the well-meaning in-
peeping of flowers, the judicious placing habitant of this greenness from realizing
of delicate green tones charmingly the thin ohviousness of the scheme.
CARTERS 1921 CATALOGUE GARDEN AND LAWN"
against somber gray ones; the tall slen- But the joy that may be gotten
from
der grace of green furniture. the green room brought about on this
MAILED ON REQUEST
To know how to accomplish a really wise! Misty gray walls, which are just
successful green room is to know and as they imply, the color of a misty
appreciate color and form, plus acquir- early morning gray woodwork of
a
ing the ability to capture a certain shy slightly deeper tone, and, since the room
Carters Tested Seeds
beauty, perpetuating its charm without is a dining room, a built-in corner cup-
rosing its fresh sweetness. This may board, from which peep out alluring
not be accomplished by sheer expense lemon yellow china things from between
INC:
of materials. neither by brilliant ex- the soft green curtains; at the windows
panses of color: such effects are too green curtains, too, of a pleasant rough
clearly not to be bought by the yard. silk; the buffet and drop-leaf table of
Address: 106 Chamber of Commerce Bldg., Dept. A, Boston
This we know intuitively, but never leaf green decorated in a dull mustard
do we realize it so poignantly as when yellow nearly the color of gold,
the
Main Office: 25 West 43rd Street, New York
we stand, is I did just lately, in the interior of the drawers of the buffet
room fairly recking with rich unctuous lined also with this; on the yellow
Philadelphia
Chicago
Toronto
green. The floor was covered with a Chinese lacquer tea wagon a pewter
tea
London. England
thick-piled, moss-green carpet. not service, and on the buffet a pair of
moss-green in shadow, but the insistent- pewter candlesticks and a black bowl
ly brilliant tone of a mossy stream-bank
(Continued on page 82)
Google
Original from
Digitizen by
UNIVERSITY OF MICHIGAN
Memo: "The Oldfarm Series"
Date:
9 March 2014
Scribe: Ronald Epp
Psychologist William James published many papers on psychical research prior to his death in
1910. Of the many spiritualists and mediums that he encountered, Mrs. Leonora Piper intrigued
him more than the others. George B. Dorr was allied with James in these investigations for more
than two decades, both intent upon demonstrating the accuracy or inaccuracies of efforts to
communicate with the deceased.
On June 5, 1906, nearly five years after the death of Dorr's mother, Mary Gray Ward Dorr, Dorr
questioned a medium at Oldfarm who claimed to a "control" or intermediary to Australian
physician Richard Hodgson, deceased but a few months. Hodgson had been one of the foremost
psychic researchers and was very familiar with Oldfarm and the Dorr family. George Dorr then
tests the unnamed medium and in the process previously unknown aspects of life at Oldfarm are
laid bare that will not be touched upon in Dorr's memoirs. Dorr adds his own comments to the
published exchanged, inserted in brackets, which can be taken as historically accurate in part
because they would have been reviewed and discussed later with William James. All quotes are
those entered by G.B. Dorr.
We had "a big buckboard that carried six people and was the only wagon which we had big
enough to take all the people up [to town the people used to go off from the kitchen, which is
at an end of the house and cannot be seen from the living rooms or piazzas
"
6659
the piazza itself, which in not a conspicuous object in the house from without, and which
was
only familiar to my mother's more intimate friends, is not a thing which would occur
naturally to anyone not familiar with our life
"
"The [living][ room is one in which, the fireplace, broad and arching, is the central figure and
would be first thought of in thinking of the room."
[Storm Beach Cottage] "was across the lawn and garden upon a hillside opposite the house. We
always kept some rooms in it for our guests, overflowing into it when the house was full."
"We use to take long walks over the mountains and go down for a plunge when we returned from
them. There were often three or more men or more going in it together when the house was
full My bath-house was not on the beach, but on a point running far out into the sea, very bold
and rocky, and we use to spring off the rocks into deep water, climbing out by a perpendicular
ladder fastened to the ledge."
On July 6, 1906 the inquiry resumes:
2.
3
'My mother use to have pansies spread loosely over the tablecloth when she had people to dine
or sup with us at Bar Harbor, where we had a large bed of them planted near the house SO we
could get them freely for this purpose. "
"A dozen years ago I made a bicycle-road on my own backland, which ran through the woods
beneath a mountain over which we often used to walk. It was a pleasant and familiar feature of
our summer life there."
"[Minna Timmins Chapman} used to smoke cigarettes occasionally and was the only person of
the feminine sex whom I now recall as having done SO at our house."
"I used to carry a little canvas bag slung over my shoulder and a cup in it, when we went on long
tramps. "
Source: William James on Psychical Research. Compiled and Edited by Gardner Murphy M.D.
and Robert O. Ballou (New York: Viking Press, 1960. Re-issued by Augustus M. Kelley,
Clifton NJ, 1973). Pp. 150-158.
Friends of
20
BOARD OF DIRECTORS
Anne Green, Chair
Bill Eacho, Treasurer
ACADIA
Hank Schmelzer, Vice Chair
Jack Kelley, Secretary
Mark Amstutz
C. Boyden Gray
Summer 2019
Julie Banzhaf-Stone
Margaret Jeffery
Volume 24 No. 2
Journal
Emily Beck
David Katona
Gail Clark
Story Litchfield
Hannah Sistare Clark
Paul Mayewski
Sam Coplon
Lili Pew
Andrew Davis
Edward L. Samek
Dave Edson
Nonie Sullivan
John Fassak
Christiaan van Heerden
Elsie Flemings
Bill Zoellick
HONORARY TRUSTEES
Noni Ames
Debby Lash
Robert and Anne Bass
Linda Lewis
Fred Benson
Liz Martinez
Curtis Blake*
Phoebe Milliken
5
14
Sylvia Blake
George J. and Heather Mitchell
Frederic A. Bourke Jr.
Joseph Murphy
Tristram and Ruth Colket
Nancy Nimick
Gail Cook
Jack Perkins
Shelby and Gale Davis
Nancy Pyne*
FEATURES
Dianna Emory
Ann R. Roberts
Nathaniel Fenton
Jeannine Ross
7 Acadia's Power to Heal
Frances Fitzgerald
Jack Russell
Nature's magic elixir holds great power
Sheldon Goldthwait
Howard Solomon
Neva Goodwin
Erwin Soule
By Dianna Emory
Paul and Eileen Growald
Diana Davis Spencer
Paul Haertel
Julia Merck Utsch
8 Capturing Acadia in Full Moon Shadow
Cookie Horner
Dick Wolf
Photographer lets nature light the way
Lee Judd
By Lisa Horsch Clark
EMERITUS TRUSTEES
10 Trail Crew Stuck Between Rock and Hard Place
W. Kent Olsen
Charles R. Tyson Jr.
Shutdown, hiring woes limit scope of work
FRIENDS OF ACADIA STAFF
By Earl Brechlin
Mary Boechat
David R. MacDonald
Development Officer
President & CEO
14
The 'Other Side' of George B. Dorr
Earl D. Brechlin
Amy Magill
Father of Acadia explored interest in paranormal
Communications Director
Administrative Assistant
By Ronald H. Epp
Sharon Broom
Dana Petersen
Development Officer
Stewardship Volunteer
20 Liddy Hubbell Draws Inspiration from Acadia
Coordinator
Stephanie Clement
Park's elegant motifs infuse artist's work
Conservation Director
Mike Staggs
By Carl Little
Lisa Horsch Clark
Office Manager
Director of Development
Paige Steele
PERSPECTIVES
& Donor Relations
Conservation Projects
Sarah Curts
Manager
1 President's Message
Many Choices, Many Voices Enhance Acadia
Accounting & Administrative
Julia Walker Thomas
Associate
Digital Media Manager
3 Acadia Questers
Mom, Daughter Connect Via App
Jason Irwin
Lisa Williams
6 Benefit Outlook
30th Benefit Is A Bridge To Future
Vice President for Finance
Communications
9 Superintendent's View
Investing In The Future
& Administration
Web & Design Associate
13 Donor Profile
Quiet Conservationist, Visionary Philanthropist
Shawn Keeley
JoAnne Wood
Senior Development Officer
Development Assistant
31 Chair's Letter
Summer Swings Into High Season
32 Special People
Couple's Love Grows With Acadia
DEPARTMENTS
4 Where in Acadia?
12 By the Numbers
16 Test Your Acadia Bridge IQ
FRIENDS OF ACADIA
23 New Donors
24 Updates
29 Business Members
2
Summer 2019
Friends of Acadia Journal
THE OTHER SIDE'
OF GEORGE B. DORR
By Ronald H. Epp
Acadia co-founder George B. Dorr, is silhouetted by the view of Frenchman Bay from the veranda of his home Old Farm in Bar Harbor.
I
t is 75 years since the Father of Acadia
developed out of his relationship with
today still celebrate about Acadia National
died at Old Farm in Bar Harbor on
Harvard University's William James, a
Park, the "endless vistas," of the island, the
August 5, 1944. From that family
physician, philosopher, and psychologist.
"fragrant worlds of steadfast land and sea,"
home, George B. Dorr also planned the
His revolutionary "Principles of Psychology"
"the mountains
their silent promises
establishment of the Mount Desert Island
(1890) substituted the methods of
of eternal peace," many wishing that "this
Biological Laboratory, the Jackson Lab,
laboratory science for faith-based belief in
desert was my dwelling place."
and Mount Desert Nurseries. In addition
an immortal soul. James attracted Dorr to
During the first three decades of Old
to these scientific pursuits, the emerging
his studies because neither dismissed nor
Farm, Mary and her husband, Charles,
paranormal science developed at Old Farm
accepted paranormal claims.
entertained academics with paranormal
has received little notice. Yet ultimately, it
interests. Harvard philosopher Josiah
too would play a role in the evolution of the
James and Dorr stood apart
Royce dedicated his influential book on
national park.
the religious aspects of philosophy to Mrs.
in their commitment to be
In the late 1870s, his mother, Mary Gray
Dorr. The stature of physiologist Henry
Ward Dorr, enlisted the Boston spiritualist
strictly scientific-cautiously
P. Bowditch prompted author Margaret
community in her efforts to contact her
perched on the fence of
Deland to write in "Golden Yesterdays," "if
eldest son William following his death from
a man like Dr. Bowditch is interested in this
typhus. This was not the first instance of
uncertainty. In his memoirs,
'psychic stuff, perhaps there is something
her reliance on the occult, for the death of
Dorr expresses the Jamesian
in it?" From abroad, English philologist
her brother John in 1856 initiated a similar
view that such phenomena
Frederick W.H. Myers and Australian
effort. Consequently, George Dorr matured
"are
not
impossible,"
attorney Richard Hodgson entered into
in a spiritualistic family. When Old Farm
their heady dialogues.
was completed in 1880, some guests that
reminding us that "the realms
These were not just maverick scholars,
his mother invited were investigators of
explored
by
science
are
for they formed the core of a new
the spirit realm.
"extraordinarily complex."
professional organization. The Society for
These researchers used existing
Psychical Research had been established in
scientific methods and developed new
The James family were frequent guests
London and immediately formed in 1884
experiments to analyze premonitions,
at the Dorr residence. Their signatures
an American branch which Hodgson led
apparitions, clairvoyance, psychokinesis,
are contained in the "Old Farm House
after its establishment by James. At the
telepathy, automatic writing, and
Book," displayed at the Bar Harbor
same time, G. Stanley Hall received the first
other paranormal practices. Mary Dorr
Historical Society Museum. This historic
American doctorate in psychology under
favored mediums who "fell asleep" only
document contains scores of signatures,
the mentorship of James, quickly rising to
to awake later apparently as another
poems, musical passages, and photographs
the presidency of Clark University-where
person-a disincarnate spirit control who
there is a collection of Dorr-Hall letters on
documenting the positive feelings associated
manipulated the body of the medium.
with the property and the island. More
parapsychology.
Her surviving son's interest, however,
than a dozen poems revel in what people
James' argued that the ideal of every
14 Summer 2019
Friends of Acadia Journal
look on the w
That not
gle cec
ook on the n
reech
Inlia Bark home
Bearnyfores
Their silent promise of eternal peace
Oliver Wendell Homes, Migur 123/188
Among the many luminaries who visited the Dorr family home, Old Farm, in Bar Harbor, and made entries in its guest book were, from left, President Chester Arthur,
author of the "Battle Hymn of the Republic" Julia Ward Howe, and Beatrix Jones (Farrand). Behind those photos is an image of a note and autograph by physician and
poet Oliver Wendell Holmes Sr.
science-that of a coherent and closed
lost interest in paranormal research. Perhaps
associated with the supernatural beliefs
system of truths-necessitates that
it was because Clark and Harvard became
implicit in psychical research with the
phenomena unverifiable within the system
the first American academic institutions to
satisfactions implicit in efforts begun to
must be untrue. Consequently, belief that
receive endowments for parapsychology
protect the natural world celebrated in
all crows are black is not defensible if one
studies. The New York Times emphasized
poetry by many Old Farm guests and other
witnesses the appearance of a white crow.
that "the acceptance of [Harvard University]
island visitors.
Hodgson, James, and Dorr were the
funding makes it impossible for any other
Julia Ward Howe, her daughter and
principle investigators in America of a
institution in this country to disregard or to
author Laura E. Richards, and others did
"white crow," Mrs. Leonora Piper-an Old
disrespect this work."
not document an awareness of the need
Farm guest in 1907. A Boston housewife
Dorr contrasted the recurring frustration
continued on page 18
with exceptional powers that appeared first
in childhood, she had never been to Bar
Harbor. Nonetheless, Piper "recalled" the
pansies Mary Dorr spread loosely over the
Old Farm table as well her delight in riding
the bicycle path that her son built at Beaver
Pond at the north end of today's Champlain
Mountain. Careful scrutiny led James and
others to conclude that Piper was not
telepathic, and that the source of her claims
could not be explained. The "Old Farm
Series" of experiments were published by
James and to this day are referenced in the
psychological literature.
James and Dorr stood apart in their
commitment to be strictly scientific-
cautiously perched on the fence of
uncertainty. In his memoirs, Dorr expresses
the Jamesian view that such phenomena
"are not impossible," reminding us that
"the realms explored by science are
"extraordinarily complex."
In 1905 Hodgson died; five years later
Dorr biographer Ronald H. Epp displays the guest book of the Dorr family home Old Farm
James, and six years later Josiah Royce. Dorr
which is in the collection of the Bar Harbor Historical Society.
Friends of Acadia Journal
Summer 2019 15
Dorr,
continued from page 15
PERUVIANLINK
ALPACA COLLECTION
44 COTTAGE ST. BAR HARBOR (207) 288-8988
W
WALLACE EVENTS
LET'S
GET
THIS
PARTY
STARTED
36 Commerce Park
Ellsworth, ME 04605
(207) 667-6000
Old Farm, the family home of the Dorr family, was located near Compass Harbor in Bar Harbor. It was
WALLACEEVENTS.COM
torn down in 1949. An online app, available on the Friends of Acadia website, allows users to take a virtual
tour of the property.
- BAR HARBOR -
to protect Nature from degradation. It was
century away from the otherworldliness
their host, George Dorr, who understood
of spiritualism to the pragmatic yet
THE CAT CAME BACK
the growing threats and allied himself with
still spiritually-inspiring national park-
MAINE NOVA SCOTIA
Harvard President Charles W. Eliot to
building goal: conserve for the public the
establish in 1901 the Hancock County
natural splendors of Mount Desert. *
Trustees of Public Reservations, the
organization that eventually acquired
RONALD EPP is the author of "Creating
the lands that became Sieur de Monts
Acadia National Park, The Biography of
THE CAT
FERRIES.CA
National Monument, the core of
George Bucknam Dorr," published in 2016
today's Acadia National Park.
by Friends of Acadia. It is available locally
In effect, Dorr's priorities shifted
and online at Sherman's Book Store and the
during the first decade of the 20th-
Bar Harbor Bookshop.
BOOK PROFILES
CREATING
ACADIA FOUNDER
ACADIA
Copies of Creating Acadia National
NATIONAL PARK
Park, The Biography of George
RONALD H. EPP
Bucknam Dorr by Ronald Epp can be
The Biography of
picked up at Sherman's Bookstore in
George Bucknam Dorr
Bar Harbor, the Bar Harbor Book Shop
in Hulls Cove, the Eastern National
gift shop at the Acadia National Park
Visitor Center (seasonal), and at the
Friends of Acadia Office on Cottage
Street in Bar Harbor.
For links to order a copy online
please visit friendsofacadia.org/epp.
18 Summer 2019
Friends of Acadia Journal
Viewer Controls
Toggle Page Navigator
P
Toggle Hotspots
H
Toggle Readerview
V
Toggle Search Bar
S
Toggle Viewer Info
I
Toggle Metadata
M
Zoom-In
+
Zoom-Out
-
Re-Center Document
Previous Page
←
Next Page
→
[Series III] Old Farm Estate-Origins 1868 to 1928
| Page | Type | Title | Date | Source | Other notes |
| 1-3 | Images | Frenchman Bay and Dorr House | - | Earle Shettleworth Jr. MHPC | - |
| 4-5 | Journal Article | House at Mt. Desert ME | 1/20/1877 | The American Architecture and Building News V.2 | - |
| 6-7 | Journal Article | The Possibility of a New Style of Architecture | 1/19/1878 | The American Architecture and Building News V.III no. 103 | - |
| 8-17 | Book Excerpt | Exteriors Etc. | 1881 | Building a Home / A.F.Oakley | - |
| 18 | Note | Additional memoirs regarding the history of the Old Farm site and its purchase by the Dorrs can be located in a file titled "Memoirs of G.B.Dorr 1866-1882" | - | Ronald Epp | - |
| 19-20 | Images | Images of House | - | Danny Smith, Yellow House Papers Curators | - |
| 21 | Website | The Inflation Calculator | 08/16/2004 | web address no longer accessible | Note: Update 2016. Cost of Old Farm mansion in 1878 is roughly $70,000, in 2016 $1,767,440 |
| 22-24 | Letter | Letter from George Dorr to Arno Cammerer | 05/01/1939 | ANPA (Acadia National Park Archives) B4.F1.2.5 | - |
| 25-27 | Notes | Old Farm Tract 1 / George Dorr | - | ANPA (Acadia National Park Archives) B2.F124 | - |
| 28-30 | Book Excerpt | Green Peace Once More | - | Stepping Westward / Laura E. Richards | - |
| 31-32 | Transcript | My Second Transcription: Old Farm Tract 2 / George Dorr | - | JML Dorr Papers c1 | - |
| 33-34 | Notes | Oldfarm the House / George Dorr | - | ANPA (Acadia National Park Archives) B2.F1.25 | - |
| 35 | Transcript | Oldfarm Architect: last quarter of record / George Dorr | - | JML Dorr Papers c1 | - |
| 36-37 | Notes | Oldfarm Construction / George Dorr | - | JML Dorr Papers c1 | - |
| 38 | Notes | Oldfarm Property Development / George Dorr | 1885 | JML Dorr Papers c1 | - |
| 39 | Dictation | Old Farm and Adminarl Mahan / George Dorr: Dictaphone | - | JML Dorr Papers c1 | - |
| 40 | Notes | Old Farm Pleasure Gardens / George Dorr | 1875 | JML Dorr Papers c1 | - |
| 41-43 | Notes | Old Farm Tidal Pool / George Dorr | - | ANPA B3 F7 | - |
| 44-46 | Notes | Old Farm and Park Origins / George Dorr | 08/06/1941 | ANPA B3 F7.21 | - |
| 47-55 | Images | Old Farm House | - | Danny Smith, Yellow House Papers Curators | - |
| 56 | Website | Maine Historic Archaeological Sites Inventory | 12/22/2008 | Earle Shettleworth Jr. MHPC | - |
| 57-59 | Maps | Geographical Maps of area of Old Farm Estate | - | - | - |
| 60-63 | Report | List of Classified Structures, Single Entry Report | - | ANPA | - |
| 64-66 | Book Excerpt | Bar-Harbor Maine Street | 1888 | Chisholms Mount Desert Island Guide Book / M.F Sweeter | - |
| 67 | Dictation | Dictaphone | 01/26/1940 | Dorr Papers B2.F6.c3 | - |
| 68 | Journal Article | George Dorr's Vision for Garden Approaches to Acadia National Park / Ronald Epp | 2004 | Chebacco VI | - |
| 69-70 | Letter | Letter from Josiah Royce to George Dorr | 8/11/1890 | HUA Joseph Royce Papers HUG 1755.12 F1 c2 | - |
| 71-74 | Book Excerpt | Beatrix Farrand visits Old Farm | 10/12/1893 | Source: Beatrix Farrand, "Book of Gardening, 1893-1895," Environmental Design Library, University of California, Berkeley. Beatrix Farrand Collection. Handwritten journal entry. | - |
| 75-76 | Notes | James & Royce re Bar Harbor | - | Ronald Epp | - |
| 77 | Notes | Bar Harbor Town Office | 1873 | Doug Chapman Archive Maps Room A.N. Lynam File | - |
| 78 | Letter | Letter from Josiah Royce to George Dorr | 8/11/1894 | HUA Joseph Royce Papers HUG 1755.12 F1 c2 | - |
| 79 | Letter | Letter from Josiah Royce to George Dorr | 9/20/1896 | HUA Joseph Royce Papers HUG 1755.12 F1 c2 | - |
| 80-81 | Memo | Memo: "The Oldfarm Series" | 03/09/2014 | Ronald Epp | - |
| 82-84 | Essay | To the West of Dorr Point... | - | ANPA B3.F7 | - |
| 85 | Website | The Downeast Dilettante | 10/31/2013 | https://thedowneastdilettante.blogspot.com/ | - |
| 86 | Dictation | Dictaphone: Wednesday Evening cy.1 | - | JML Dorr Papers | - |
| 87-89 | Website | Images and Newspaper Article | 10/31/2013 | From: https://thedowneastdilettante.blogspot.com/ | - |
| 90-94 | Journal Article | Some Gardens at Bar Harbor / Mervin James Curl | 1921 | House and Gardens 32 | - |
| 95-96 | Memo | Memo: "The Oldfarm Series" | 03/09/2014 | Ronald Epp | - |
| 97-100 | Journal Article | The 'Other Side' of George B. Dorr / Ronald Epp | 2019 | Friends of Acadia Journal Vol. 24 No. 2 | - |
Details
1868 - 1928